|
Instituto del Patrimonio Cultural de España
»
Planoteca
»
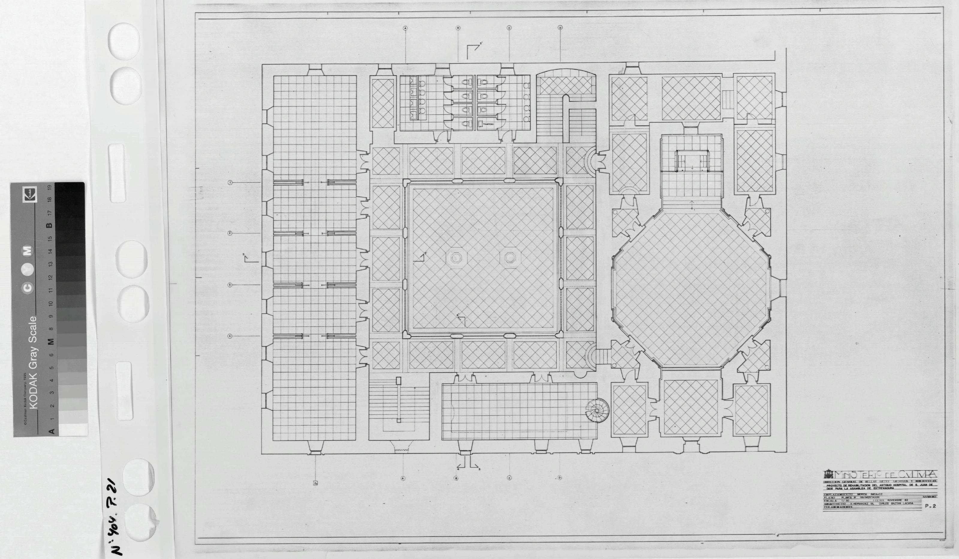
ASAMBLEA DE EXTREMADURA PROYECTO DE REHABILITACIÓN DEL ANTIGUO HOSPITAL DE S. JUAN DE DIOS PARA SEDE DE LA ASAMBLEA: PLANTA PRIMERA PAVIMENTACION Con despiece de solados en todas las estancias Con Líneas de sección 3-3¿, 4-4¿ y 5-5¿ y varias llamadas con letra y círculo en fachada. Sin firmar
|
|
|
|
ASAMBLEA DE EXTREMADURA PROYECTO DE REHABILITACIÓN DEL ANTIGUO HOSPITAL DE S. JUAN DE DIOS PARA SEDE DE LA ASAMBLEA: PLANTA PRIMERA PAVIMENTACION Con despiece de solados en todas las estancias Con Líneas de sección 3-3¿, 4-4¿ y 5-5¿ y varias llamadas con letra y círculo en fachada. Sin firmar
Fechas extremas
1983, enero, 1
Signatura
PLM ARCH 4 404 / 21
Tipología documental
Plano
Signatura digital
Nº de Imagen: 01169 Nº de Disco TIFF: 0035 Nº de Disco JPEG: 0001 Nº de Disco DJVU: 0001
ASAMBLEA DE EXTREMADURA PROYECTO DE REHABILITACIÓN DEL ANTIGUO HOSPITAL DE S. JUAN DE DIOS PARA SEDE DE LA ASAMBLEA: PLANTA PRIMERA PAVIMENTACION Con despiece de solados en todas las estancias Con Líneas de sección 3-3¿, 4-4¿ y 5-5¿ y varias llamadas con letra y círculo en fachada. Sin firmar
|