|
Instituto del Patrimonio Cultural de España
»
Planoteca
»
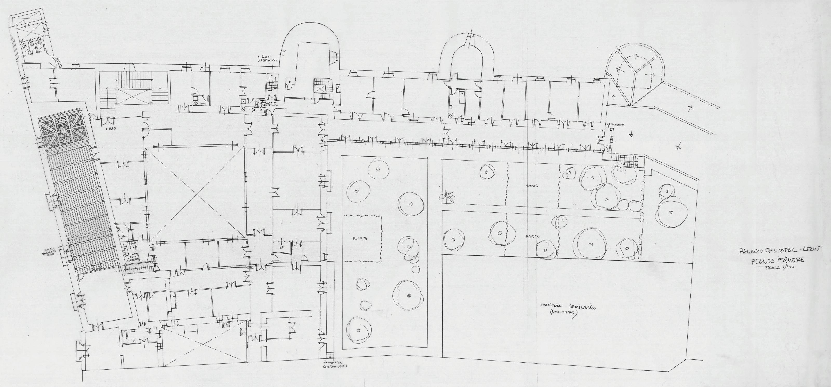
PALACIO EPISCOPAL DE LEON: PLANTA PRIMERA Con alguna nota, también incluye zona de huerta y propiedades del seminario. Refleja artesonados en zona de portería. Sin sello y sin firmar
|
|
|
|
PALACIO EPISCOPAL DE LEON: PLANTA PRIMERA Con alguna nota, también incluye zona de huerta y propiedades del seminario. Refleja artesonados en zona de portería. Sin sello y sin firmar
Fechas extremas
9999, septiembre, 9
Signatura
PLM ARCH 8 184 / 5
Tipología documental
Plano
Signatura digital
Nº de Imagen: 03640 Nº de Disco TIFF: 0096 Nº de Disco JPEG: 0001 Nº de Disco DJVU: 0001
PALACIO EPISCOPAL DE LEON: PLANTA PRIMERA Con alguna nota, también incluye zona de huerta y propiedades del seminario. Refleja artesonados en zona de portería. Sin sello y sin firmar
|