|
Instituto del Patrimonio Cultural de España
»
Planoteca
»
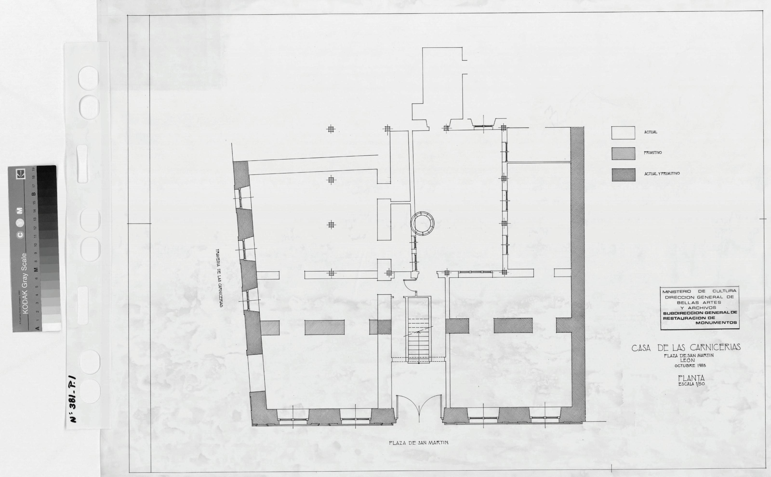
CASA DE LAS CARNICERIAS - Pza. de San Martín - LEON: PLANTA Con diferentes representaciones de muros para diferenciar los actuales de los primitivos, con leyenda y con denominación de travesía y plaza. Sin cotas y sin firmar.
|
|
|
|
CASA DE LAS CARNICERIAS - Pza. de San Martín - LEON: PLANTA Con diferentes representaciones de muros para diferenciar los actuales de los primitivos, con leyenda y con denominación de travesía y plaza. Sin cotas y sin firmar.
Fechas extremas
1983, enero, 1
Signatura
PLM ARCH 5 381 / 1
Tipología documental
Plano
Signatura digital
Nº de Imagen: 02078 Nº de Disco TIFF: 0066 Nº de Disco JPEG: 0001 Nº de Disco DJVU: 0001
CASA DE LAS CARNICERIAS - Pza. de San Martín - LEON: PLANTA Con diferentes representaciones de muros para diferenciar los actuales de los primitivos, con leyenda y con denominación de travesía y plaza. Sin cotas y sin firmar.
|