|
Instituto del Patrimonio Cultural de España
»
Planoteca
»
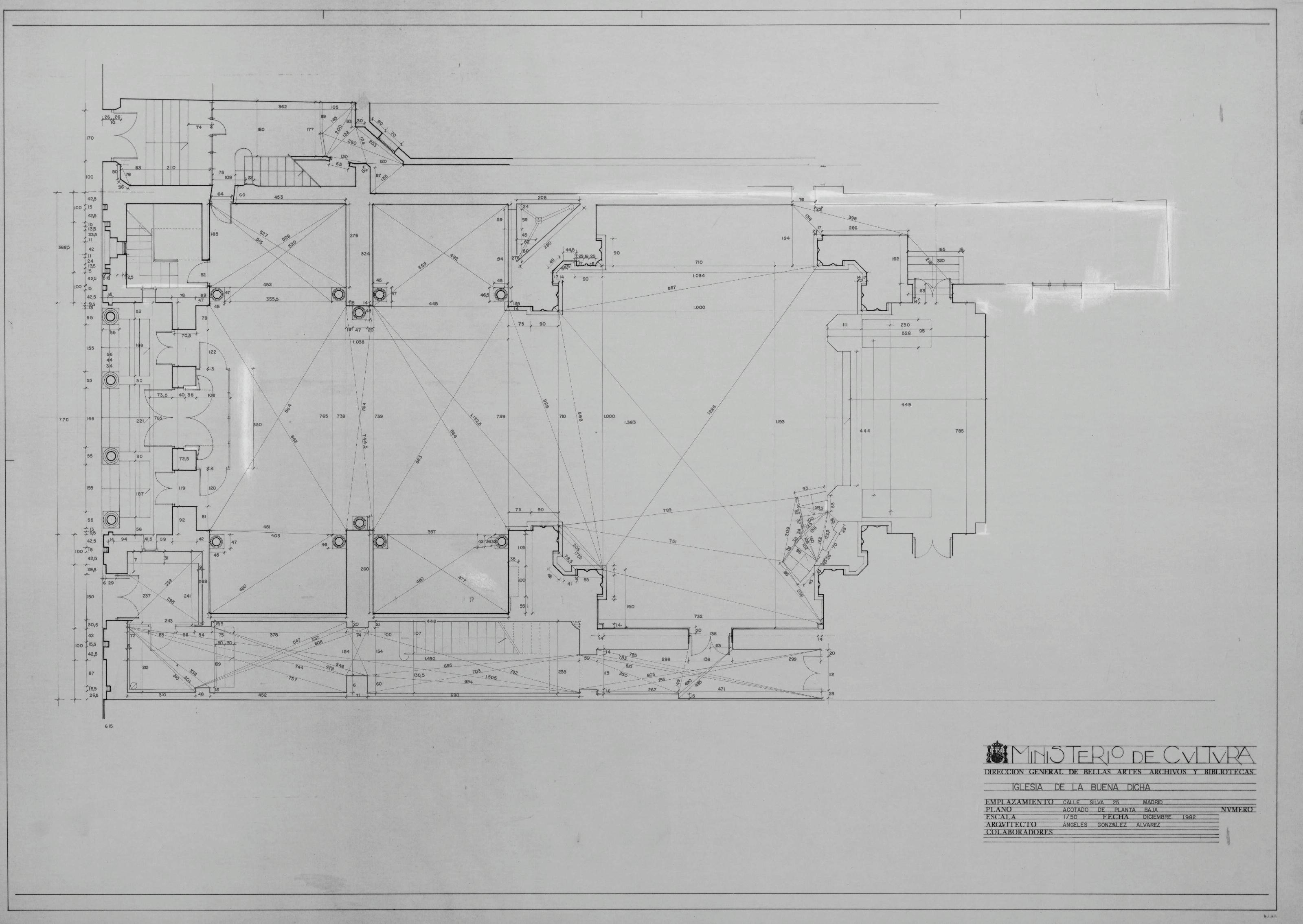
IGLESIA DE LA BUENA DICHA: PLANTA BAJA ACOTADA. planta baja de la iglesia con muros regruesados , con emplazamiento a calle silva, plano con cotas.
|
|
|
|
IGLESIA DE LA BUENA DICHA: PLANTA BAJA ACOTADA. planta baja de la iglesia con muros regruesados , con emplazamiento a calle silva, plano con cotas.
Fechas extremas
1982, enero, 1
Signatura
PLM ARCH 100 47 / 2
Tipología documental
Plano
Signatura digital
Nº de Imagen: 04812 Nº de Disco TIFF: 0119 Nº de Disco JPEG: 0001 Nº de Disco DJVU: 0001
IGLESIA DE LA BUENA DICHA: PLANTA BAJA ACOTADA. planta baja de la iglesia con muros regruesados , con emplazamiento a calle silva, plano con cotas.
|