|
Instituto del Patrimonio Cultural de España
»
Planoteca
»
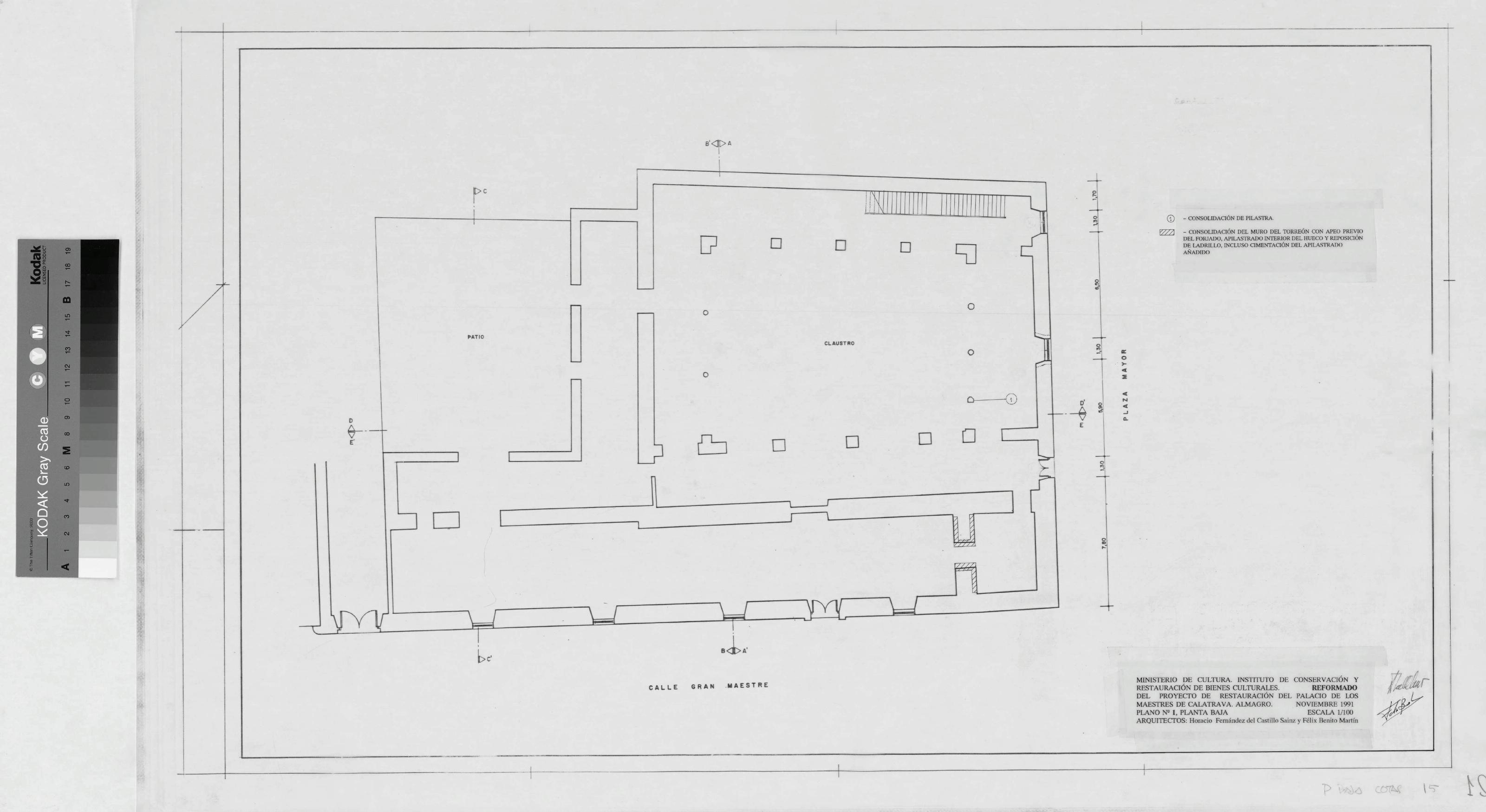
PALACIO DE LOS MAESTRES DE CALATRAVA: PLANTA BAJA
|
|
|
|
PALACIO DE LOS MAESTRES DE CALATRAVA: PLANTA BAJA
Fechas extremas
1991, enero, 1
Signatura
PLM CAJA 1 1 / 21
Tipología documental
Plano
Signatura digital
Nº de Imagen: 08082 Nº de Disco TIFF: 0237 Nº de Disco JPEG: 0002 Nº de Disco DJVU: 0001
PALACIO DE LOS MAESTRES DE CALATRAVA: PLANTA BAJA
|