|
Instituto del Patrimonio Cultural de España
»
Planoteca
»
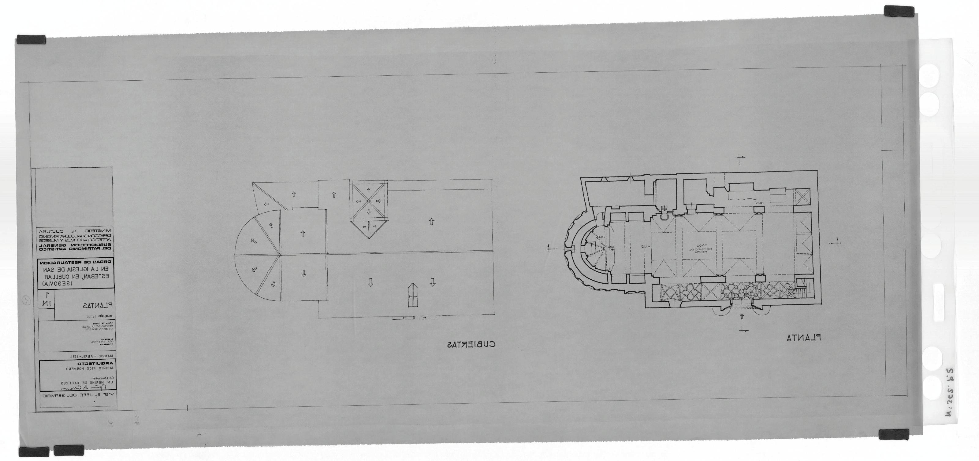
IGLESIA DE SAN ESTEBAN CUELLAR SEGOVIA: PLANTA Y PLANTA DE CUBIERTA
|
|
|
|
IGLESIA DE SAN ESTEBAN CUELLAR SEGOVIA: PLANTA Y PLANTA DE CUBIERTA
Fechas extremas
1981, enero, 1
Signatura
PLM ARCH 5 362 / 2
Tipología documental
Plano
Signatura digital
Nº de Imagen: 01912 Nº de Disco TIFF: 0063 Nº de Disco JPEG: 0001 Nº de Disco DJVU: 0001
IGLESIA DE SAN ESTEBAN CUELLAR SEGOVIA: PLANTA Y PLANTA DE CUBIERTA
|