|
Instituto del Patrimonio Cultural de España
»
Planoteca
»
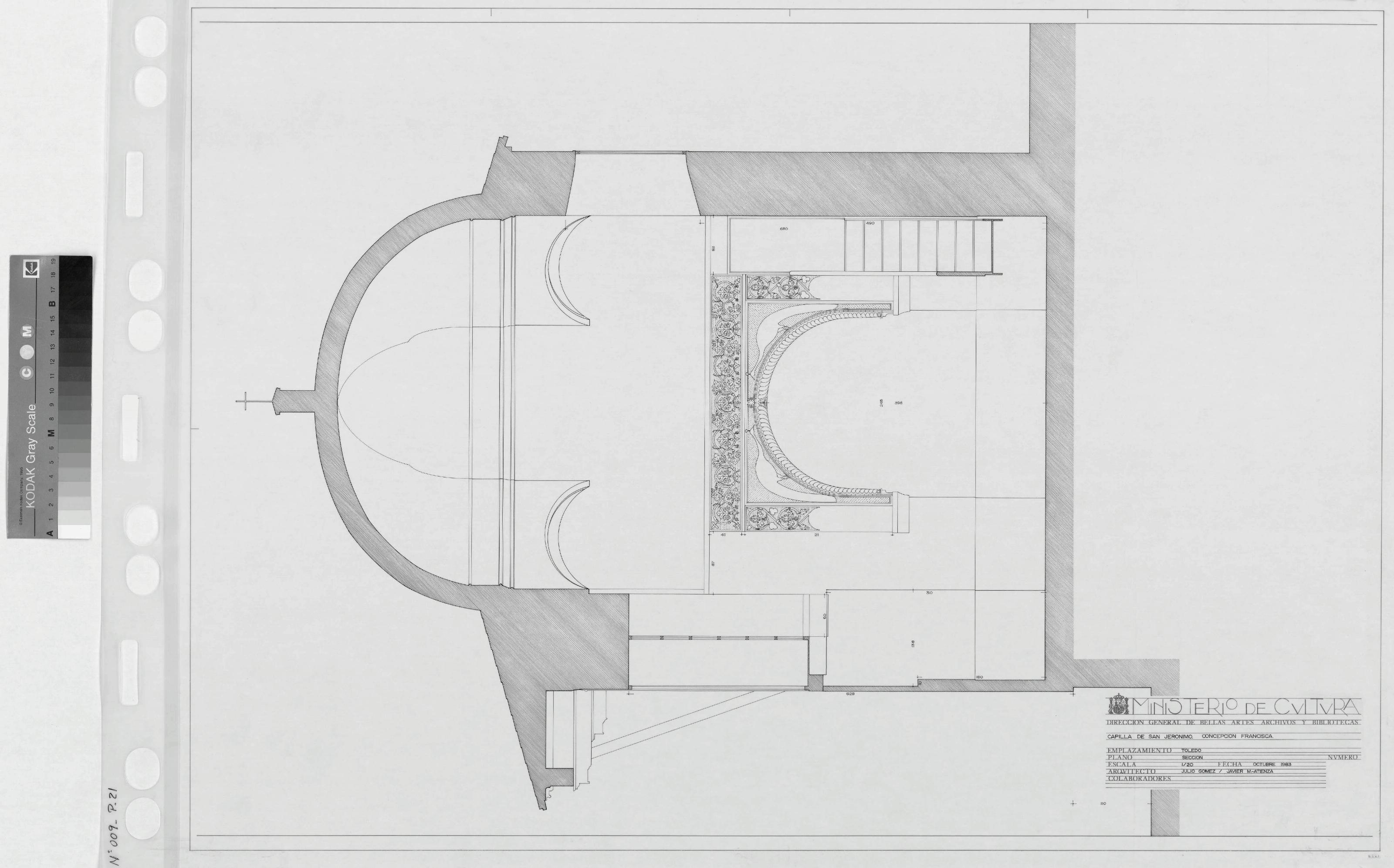
CONVENTO CONCEPCION FRANCISCANA: CAPILLA DE SAN JERONIMO SECCION COTAS
|
|
|
|
CONVENTO CONCEPCION FRANCISCANA: CAPILLA DE SAN JERONIMO SECCION COTAS
Fechas extremas
1983, enero, 1
Signatura
PLM ARCH 100 9 / 21
Tipología documental
Plano
Signatura digital
Nº de Imagen: 04524 Nº de Disco TIFF: 0113 Nº de Disco JPEG: 0001 Nº de Disco DJVU: 0001
CONVENTO CONCEPCION FRANCISCANA: CAPILLA DE SAN JERONIMO SECCION COTAS
|