|
Instituto del Patrimonio Cultural de España
»
Planoteca
»
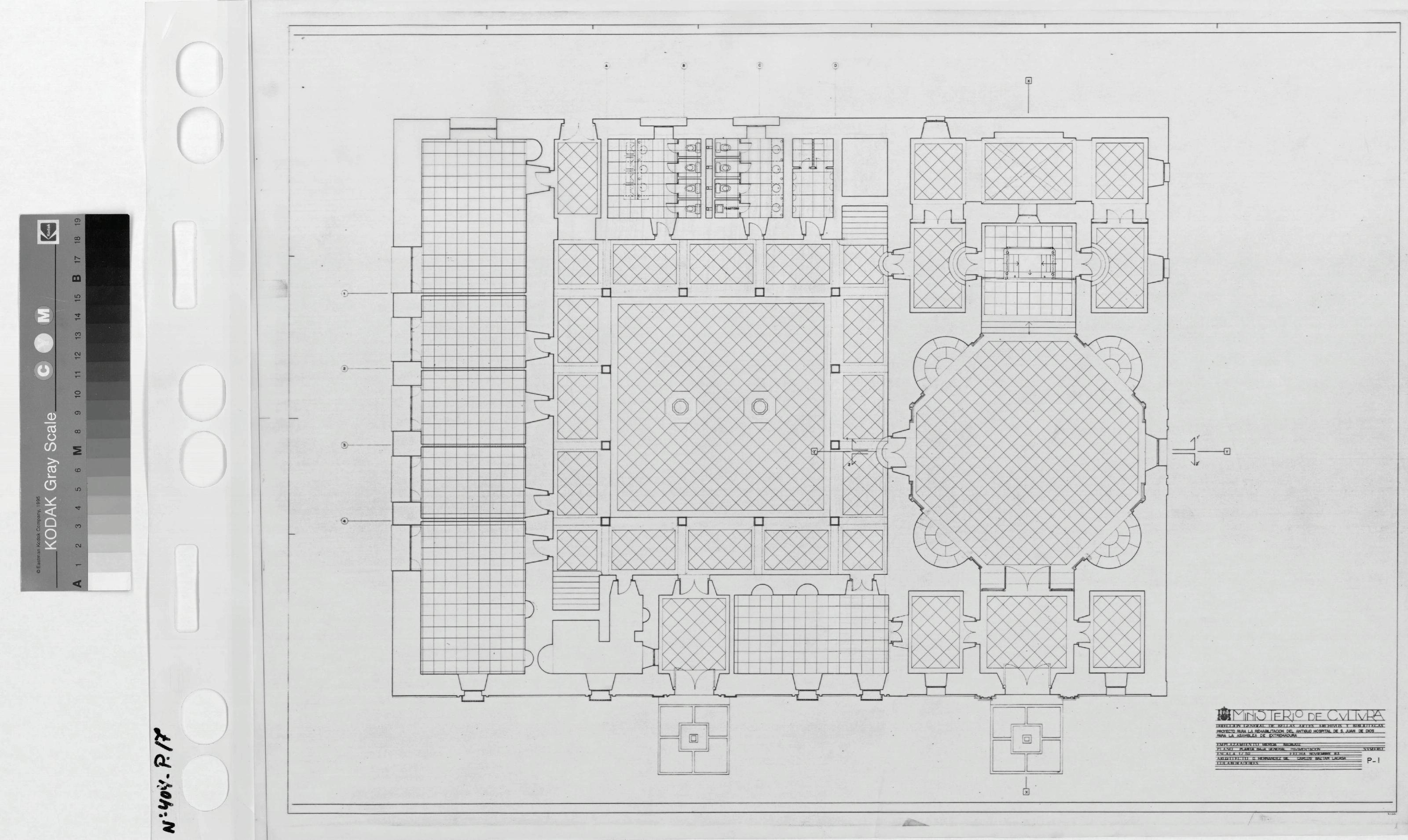
ASAMBLEA DE EXTREMADURA PROYECTO DE REHABILITACIÓN DEL ANTIGUO HOSPITAL DE S. JUAN DE DIOS PARA SEDE DE LA ASAMBLEA: PLANTA BAJA GENERAL Pavimentación Despiece de Solados en todas las estancias Con Líneas de sección 1-1¿ y 2-2¿ y varias llamadas en fachadas con números o letras rodeadas de círculo Sin firmar
|
|
|
|
ASAMBLEA DE EXTREMADURA PROYECTO DE REHABILITACIÓN DEL ANTIGUO HOSPITAL DE S. JUAN DE DIOS PARA SEDE DE LA ASAMBLEA: PLANTA BAJA GENERAL Pavimentación Despiece de Solados en todas las estancias Con Líneas de sección 1-1¿ y 2-2¿ y varias llamadas en fachadas con números o letras rodeadas de círculo Sin firmar
Fechas extremas
1983, enero, 1
Signatura
PLM ARCH 4 404 / 17
Tipología documental
Plano
Signatura digital
Nº de Imagen: 01165 Nº de Disco TIFF: 0035 Nº de Disco JPEG: 0001 Nº de Disco DJVU: 0001
ASAMBLEA DE EXTREMADURA PROYECTO DE REHABILITACIÓN DEL ANTIGUO HOSPITAL DE S. JUAN DE DIOS PARA SEDE DE LA ASAMBLEA: PLANTA BAJA GENERAL Pavimentación Despiece de Solados en todas las estancias Con Líneas de sección 1-1¿ y 2-2¿ y varias llamadas en fachadas con números o letras rodeadas de círculo Sin firmar
|