|
Instituto del Patrimonio Cultural de España
»
Planoteca
»
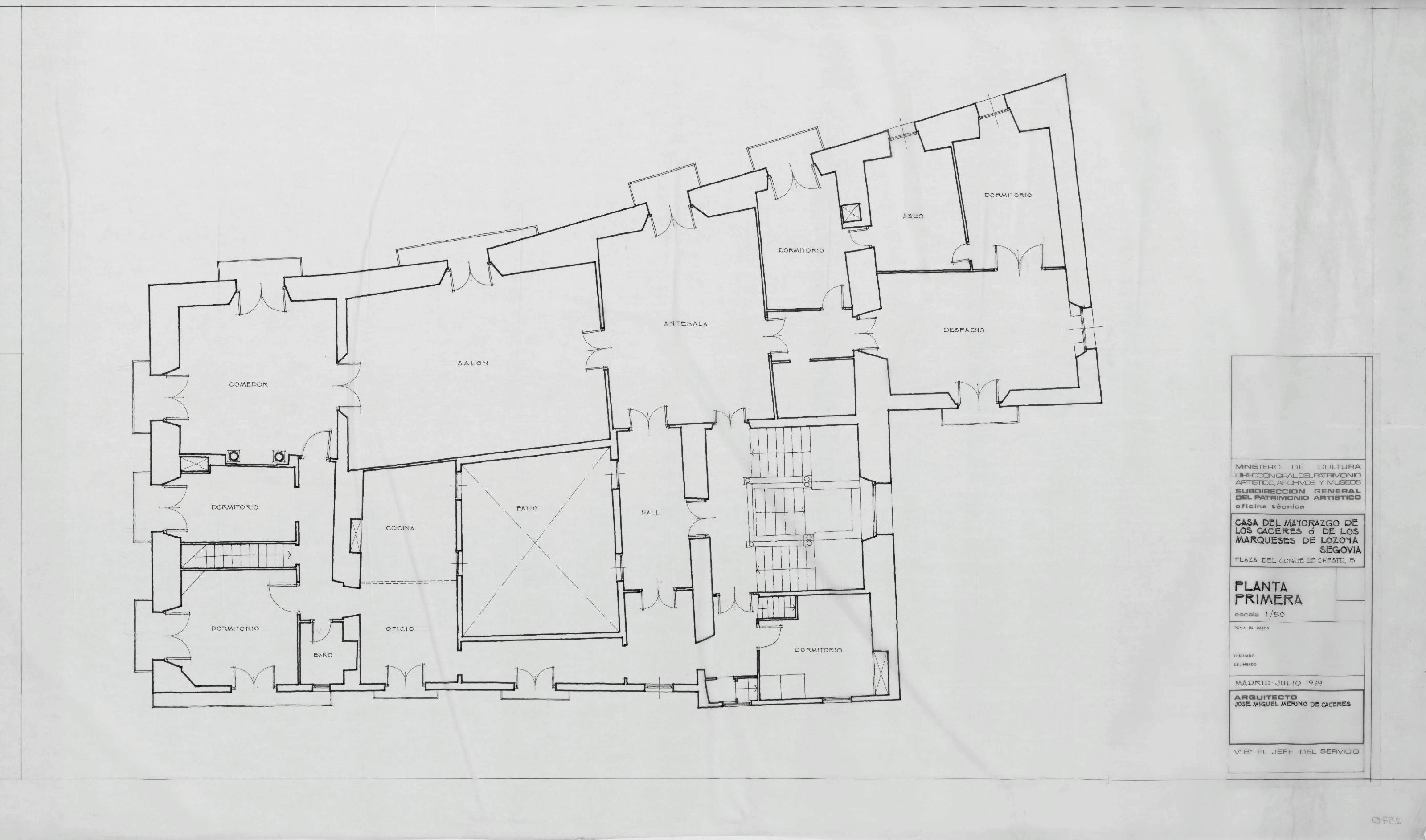
CASA DE MAYORAZGO DE LOS CACERES O DEL MARQUES DE LOZOYA: PLANTA PRIMERA
|
|
|
|
CASA DE MAYORAZGO DE LOS CACERES O DEL MARQUES DE LOZOYA: PLANTA PRIMERA
Fechas extremas
1979, enero, 1
Signatura
PLM CAJA 20 637 / 2570
Tipología documental
Plano
Signatura digital
Nº de Imagen: 10485 Nº de Disco TIFF: 0275 Nº de Disco JPEG: 0003 Nº de Disco DJVU: 0001
CASA DE MAYORAZGO DE LOS CACERES O DEL MARQUES DE LOZOYA: PLANTA PRIMERA
|