|
Instituto del Patrimonio Cultural de España
»
Planoteca
»
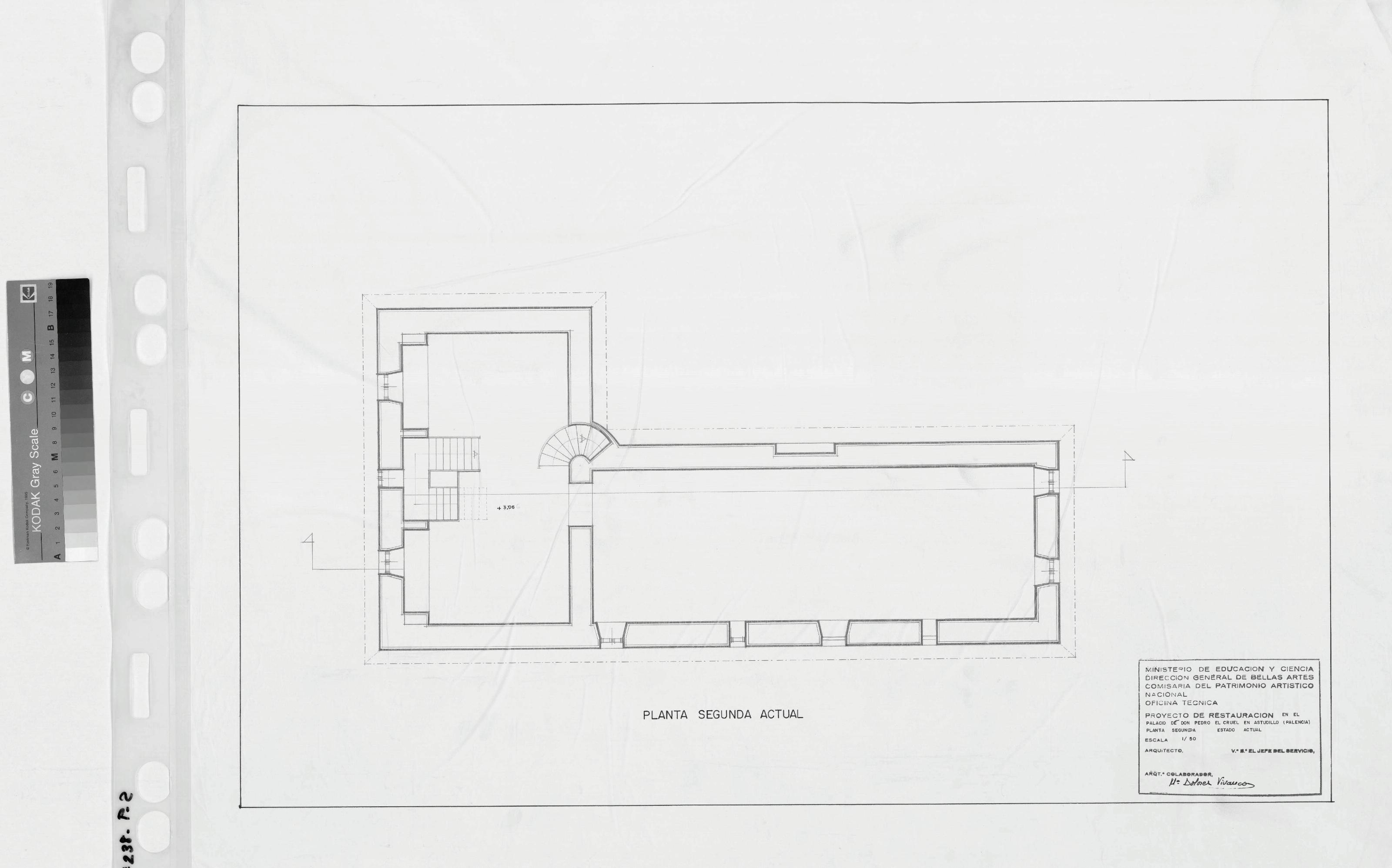
PALACIO DE DON PEDRO EL CRUEL: PLANTA SEGUNDA ESTADO ACTUAL
|
|
|
|
PALACIO DE DON PEDRO EL CRUEL: PLANTA SEGUNDA ESTADO ACTUAL
Fechas extremas
9999, septiembre, 9
Signatura
PLM ARCH 7 238 / 2
Tipología documental
Plano
Signatura digital
Nº de Imagen: 02909 Nº de Disco TIFF: 0082 Nº de Disco JPEG: 0001 Nº de Disco DJVU: 0001
PALACIO DE DON PEDRO EL CRUEL: PLANTA SEGUNDA ESTADO ACTUAL
|