|
Instituto del Patrimonio Cultural de España
»
Planoteca
»
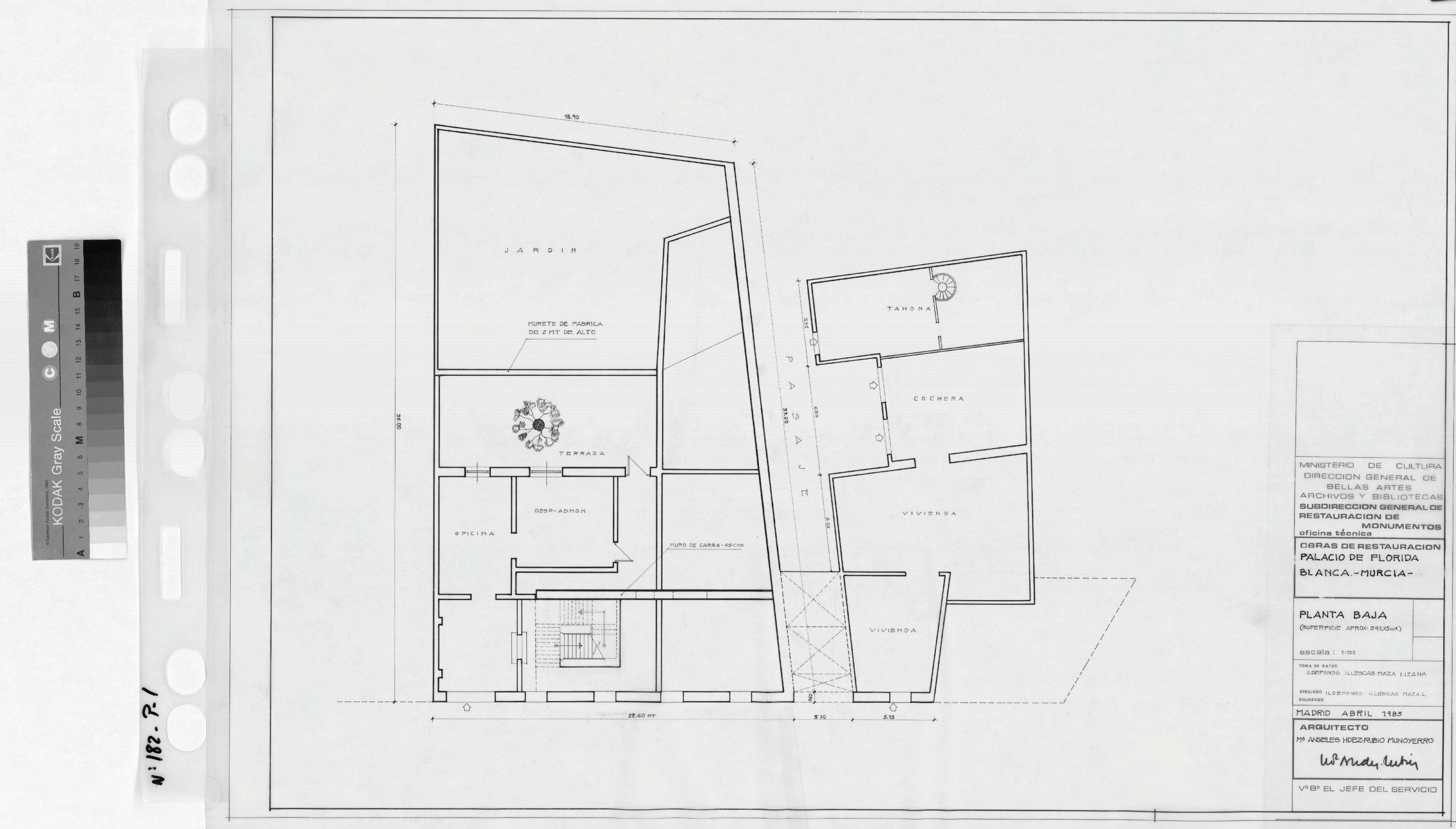
PALACIO DE FLORIDA BLANCA: PLANTA BAJA SUPERFICIE APROXIMADA 591,75 M2
|
|
|
|
PALACIO DE FLORIDA BLANCA: PLANTA BAJA SUPERFICIE APROXIMADA 591,75 M2
Fechas extremas
1983, enero, 1
Signatura
PLM ARCH 8 182 / 1
Tipología documental
Plano
Signatura digital
Nº de Imagen: 03629 Nº de Disco TIFF: 0096 Nº de Disco JPEG: 0001 Nº de Disco DJVU: 0001
PALACIO DE FLORIDA BLANCA: PLANTA BAJA SUPERFICIE APROXIMADA 591,75 M2
|