|
Instituto del Patrimonio Cultural de España
»
Planoteca
»
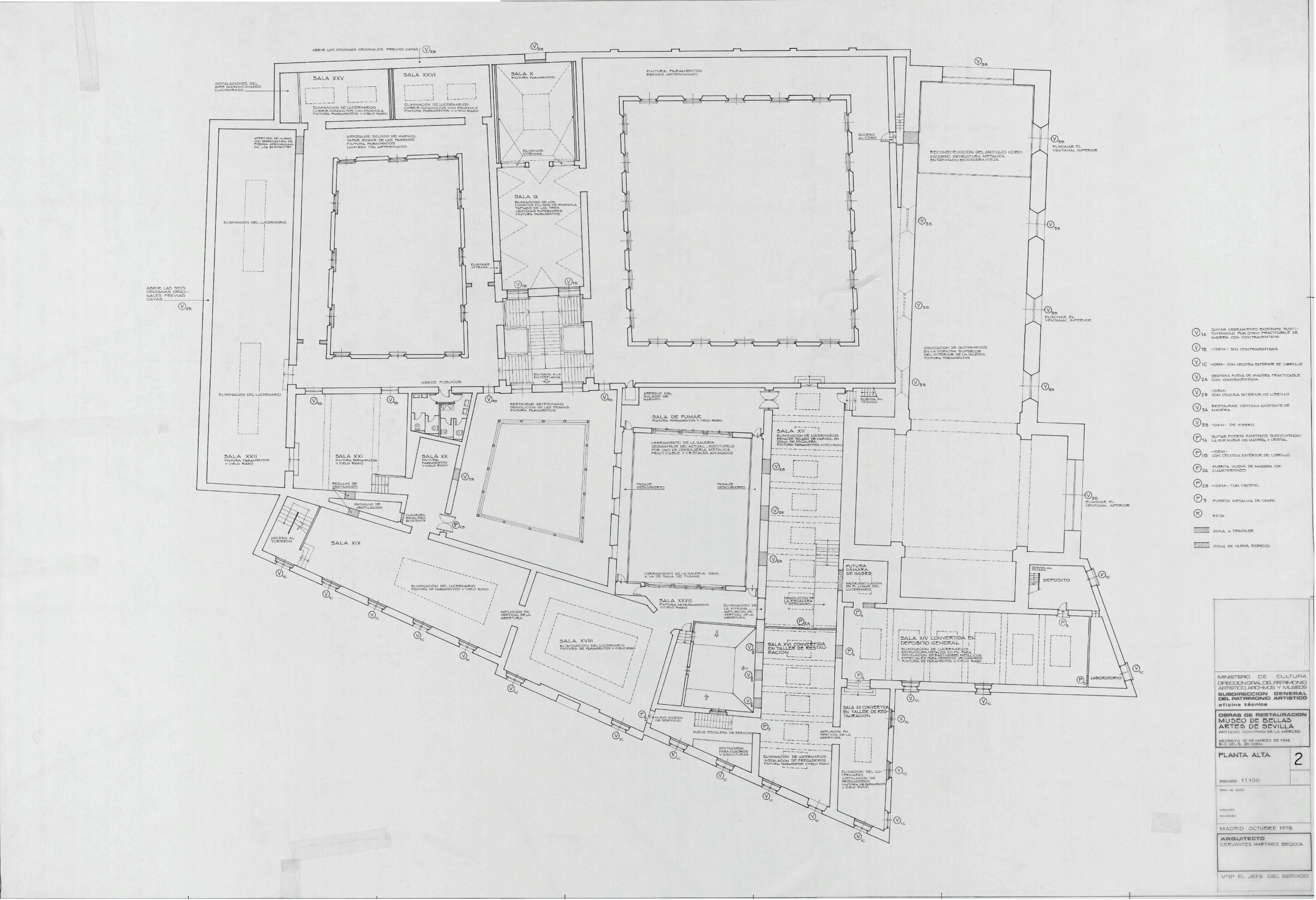
MUSEO DE BELLAS ARTES- ANTIGUO CONVENTO DE LA MERCED SEVILLA: PLANTA ALTA
|
|
|
|
MUSEO DE BELLAS ARTES- ANTIGUO CONVENTO DE LA MERCED SEVILLA: PLANTA ALTA
Fechas extremas
1978, enero, 1
Signatura
PLM ARCH 5 372 / 2
Tipología documental
Plano
Signatura digital
Nº de Imagen: 02019 Nº de Disco TIFF: 0065 Nº de Disco JPEG: 0001 Nº de Disco DJVU: 0001
MUSEO DE BELLAS ARTES- ANTIGUO CONVENTO DE LA MERCED SEVILLA: PLANTA ALTA
|