|
Instituto del Patrimonio Cultural de España
»
Planoteca
»
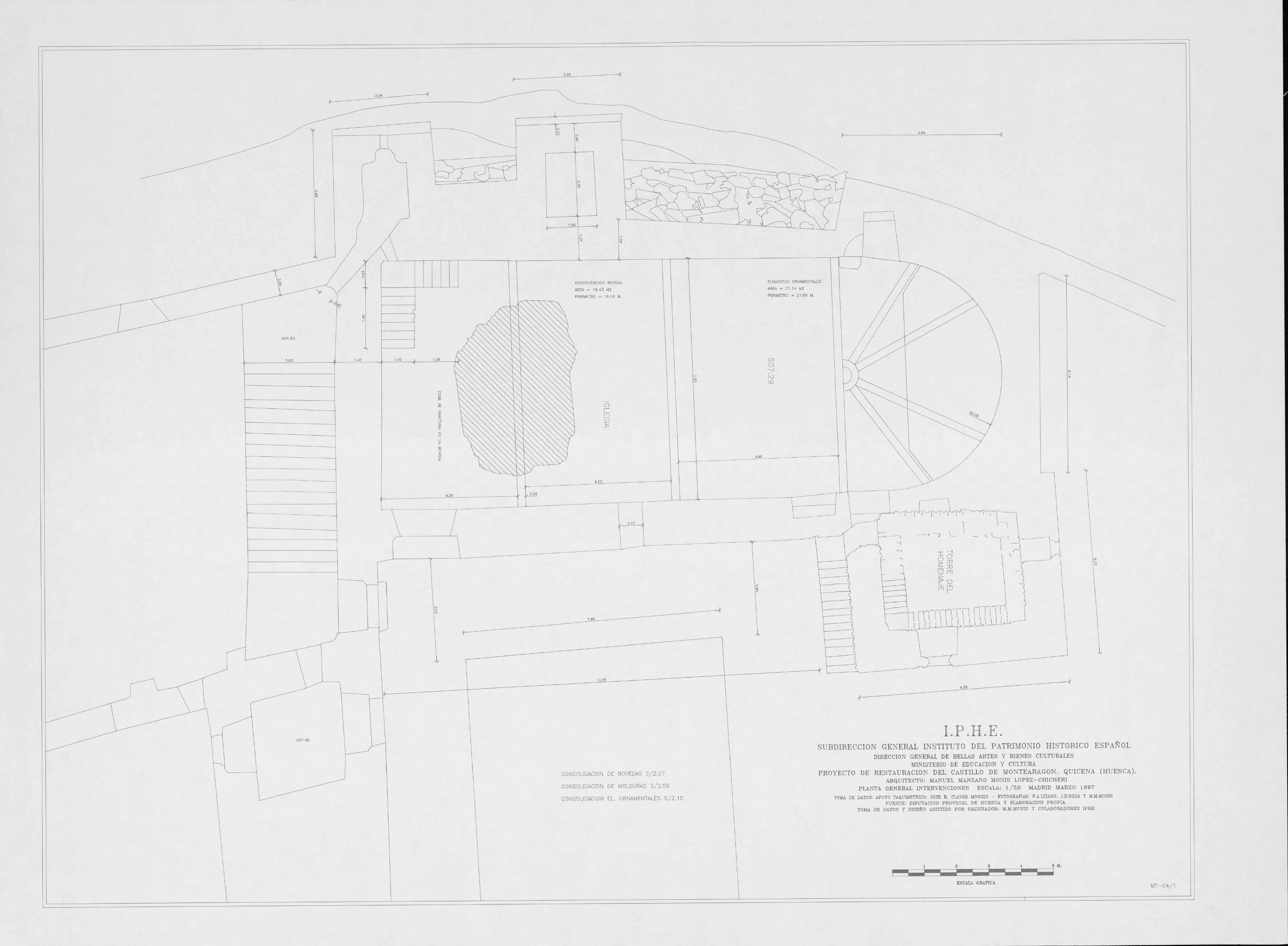
CATILLO DE MONTEARAGON: PLANTA GENERAL. INTERVENCIONES
|
|
|
|
CATILLO DE MONTEARAGON: PLANTA GENERAL. INTERVENCIONES
Fechas extremas
1997, enero, 1
Signatura
PLM CAJA 1 5 / 112
Tipología documental
Plano
Signatura digital
Nº de Imagen: 08173 Nº de Disco TIFF: 0238 Nº de Disco JPEG: 0002 Nº de Disco DJVU: 0001
CATILLO DE MONTEARAGON: PLANTA GENERAL. INTERVENCIONES
|