|
Instituto del Patrimonio Cultural de España
»
Planoteca
»
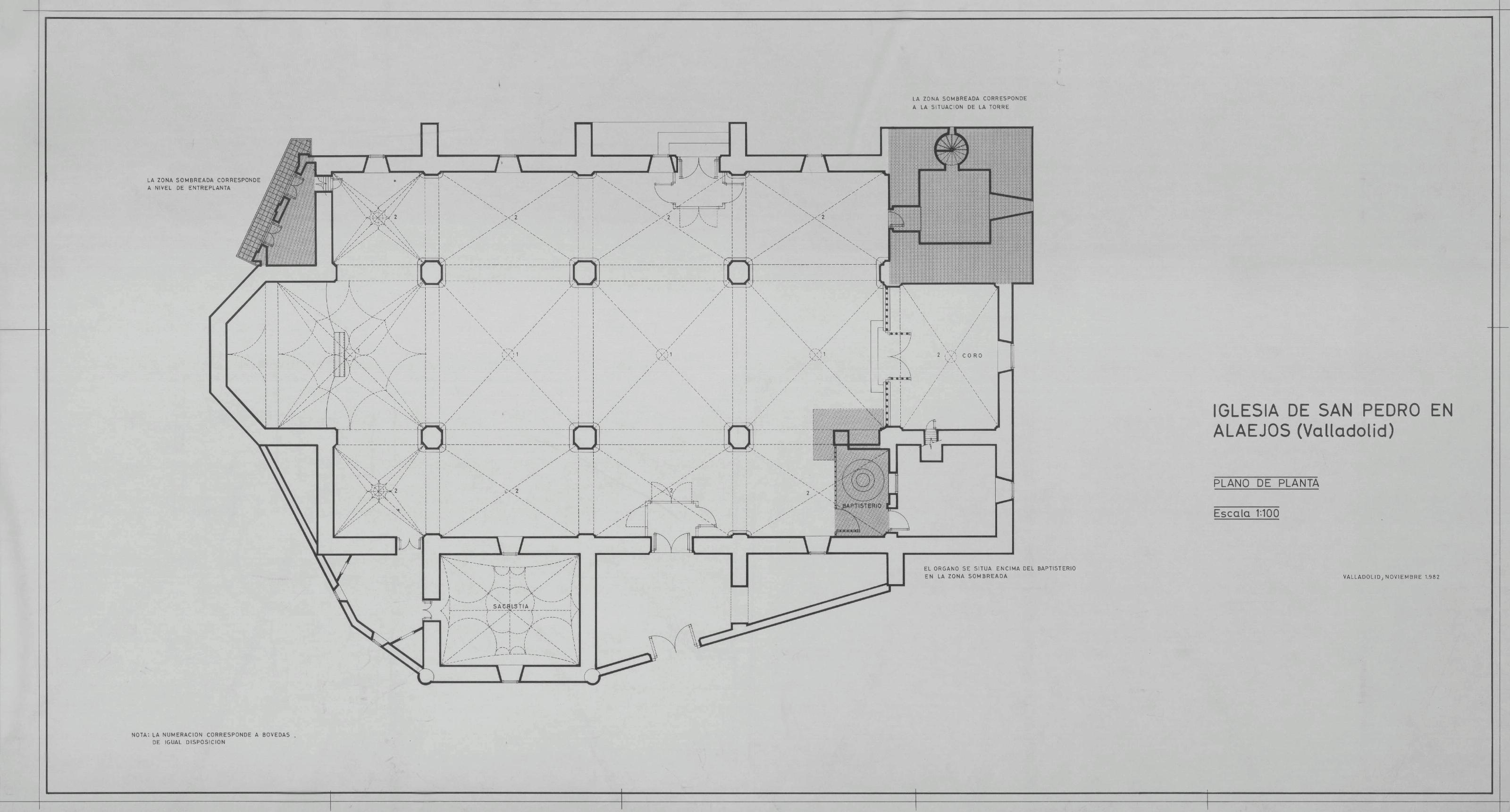
IGLESIA DE SAN PEDRO: PLANO DE PLANTAS
|
|
|
|
IGLESIA DE SAN PEDRO: PLANO DE PLANTAS
Fechas extremas
1982, enero, 1
Signatura
PLM ARCH 8 209 / 1
Tipología documental
Plano
Signatura digital
Nº de Imagen: 03780 Nº de Disco TIFF: 0100 Nº de Disco JPEG: 0001 Nº de Disco DJVU: 0001
IGLESIA DE SAN PEDRO: PLANO DE PLANTAS
|