|
Instituto del Patrimonio Cultural de España
»
Planoteca
»
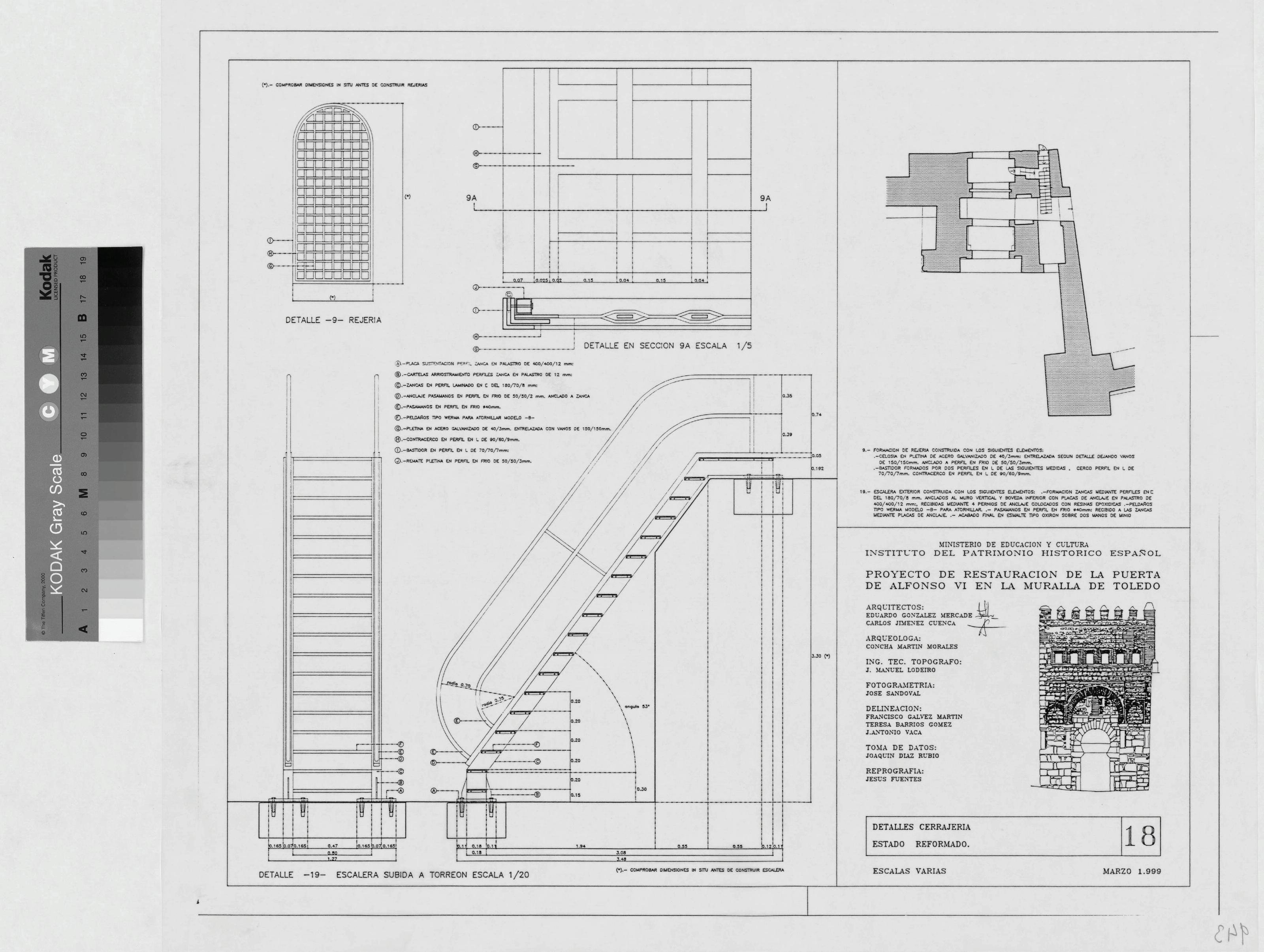
PUERTA DE ALFONSO VI. MURALLAS DE TOLEDO: DETALLES CERRAJERIA. ESTADO REFORMADO
|
|
|
|
PUERTA DE ALFONSO VI. MURALLAS DE TOLEDO: DETALLES CERRAJERIA. ESTADO REFORMADO
Fechas extremas
1999, enero, 1
Signatura
PLM CAJA 5 58 / 943
Tipología documental
Plano
Signatura digital
Nº de Imagen: 08982 Nº de Disco TIFF: 0249 Nº de Disco JPEG: 0002 Nº de Disco DJVU: 0001
PUERTA DE ALFONSO VI. MURALLAS DE TOLEDO: DETALLES CERRAJERIA. ESTADO REFORMADO
|