|
Instituto del Patrimonio Cultural de España
»
Planoteca
»
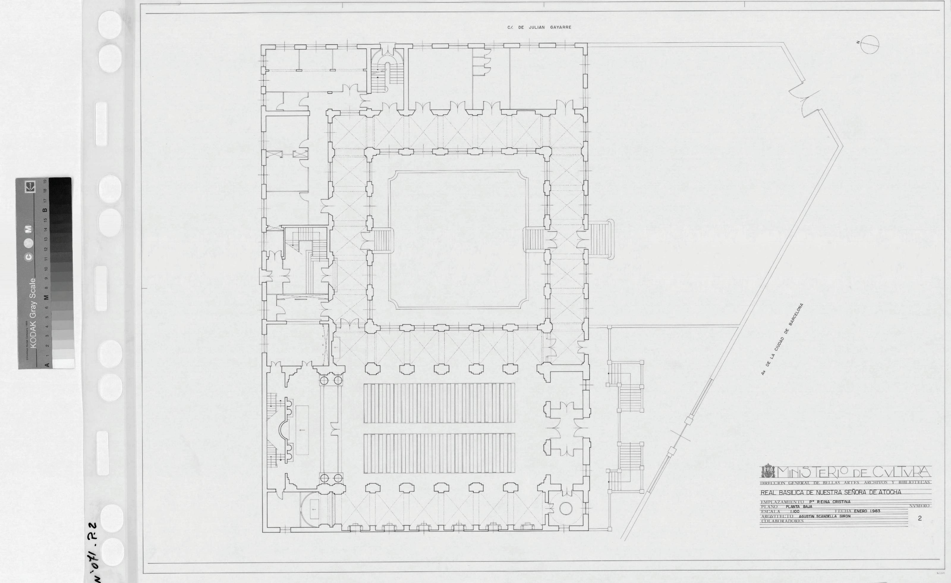
BASILICA DE NUESTRA SEÑORA DE ATOCHA: PLANTA BAJA
|
|
|
|
BASILICA DE NUESTRA SEÑORA DE ATOCHA: PLANTA BAJA
Fechas extremas
1983, enero, 1
Signatura
PLM ARCH 9 71 / 2
Tipología documental
Plano
Signatura digital
Nº de Imagen: 03925 Nº de Disco TIFF: 0102 Nº de Disco JPEG: 0001 Nº de Disco DJVU: 0001
BASILICA DE NUESTRA SEÑORA DE ATOCHA: PLANTA BAJA
|