|
Instituto del Patrimonio Cultural de España
»
Planoteca
»
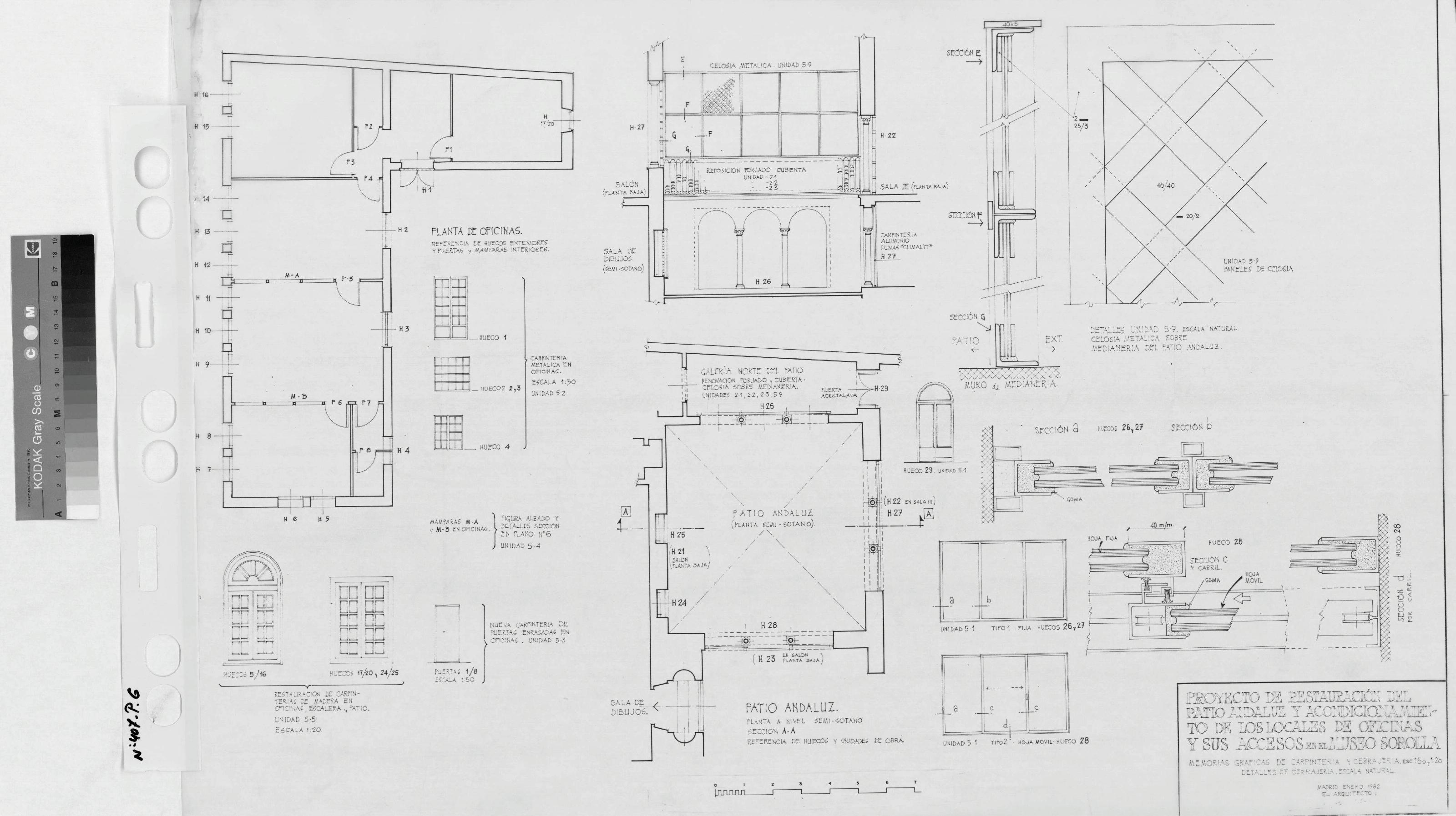
MUSEO SOROLLA: ACONDICIONAMIENTO DE LOCALES DE OFICINAS Y ACCESOS.
|
|
|
|
MUSEO SOROLLA: ACONDICIONAMIENTO DE LOCALES DE OFICINAS Y ACCESOS.
Fechas extremas
1982, enero, 1
Signatura
PLM ARCH 4 407 / 6
Tipología documental
Plano
Signatura digital
Nº de Imagen: 01316 Nº de Disco TIFF: 0041 Nº de Disco JPEG: 0001 Nº de Disco DJVU: 0001
MUSEO SOROLLA: ACONDICIONAMIENTO DE LOCALES DE OFICINAS Y ACCESOS.
|