|
Instituto del Patrimonio Cultural de España
»
Planoteca
»
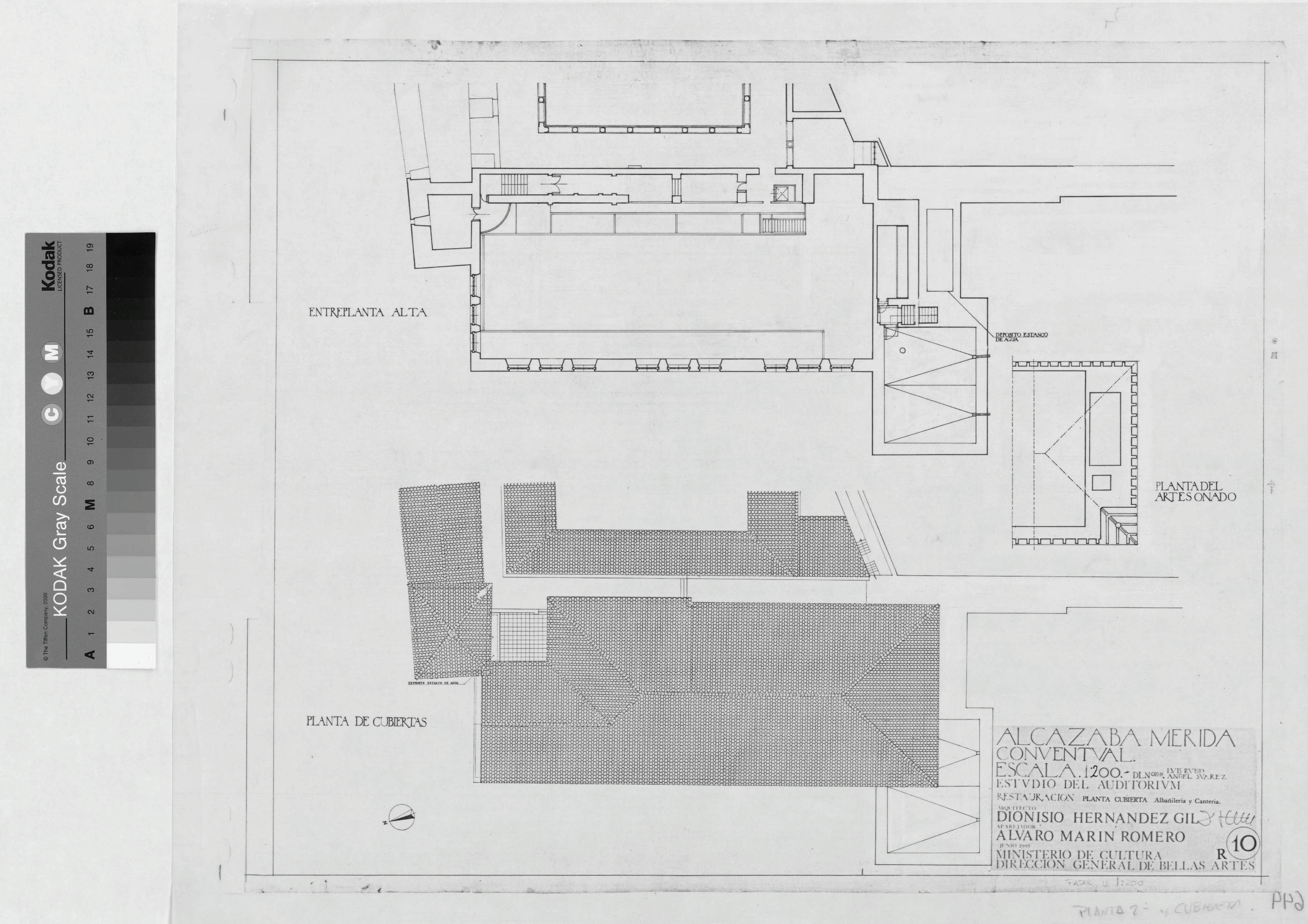
ALCAZABA Y CONVENTUAL: PLANTA CUBIERTA. ALBAÑILERIA Y CANTERIA
|
|
|
|
ALCAZABA Y CONVENTUAL: PLANTA CUBIERTA. ALBAÑILERIA Y CANTERIA
Fechas extremas
1985, enero, 1
Signatura
PLM CAJA 3 47 / 644
Tipología documental
Plano
Signatura digital
Nº de Imagen: 08690 Nº de Disco TIFF: 0245 Nº de Disco JPEG: 0002 Nº de Disco DJVU: 0001
ALCAZABA Y CONVENTUAL: PLANTA CUBIERTA. ALBAÑILERIA Y CANTERIA
|