|
Instituto del Patrimonio Cultural de España
»
Planoteca
»
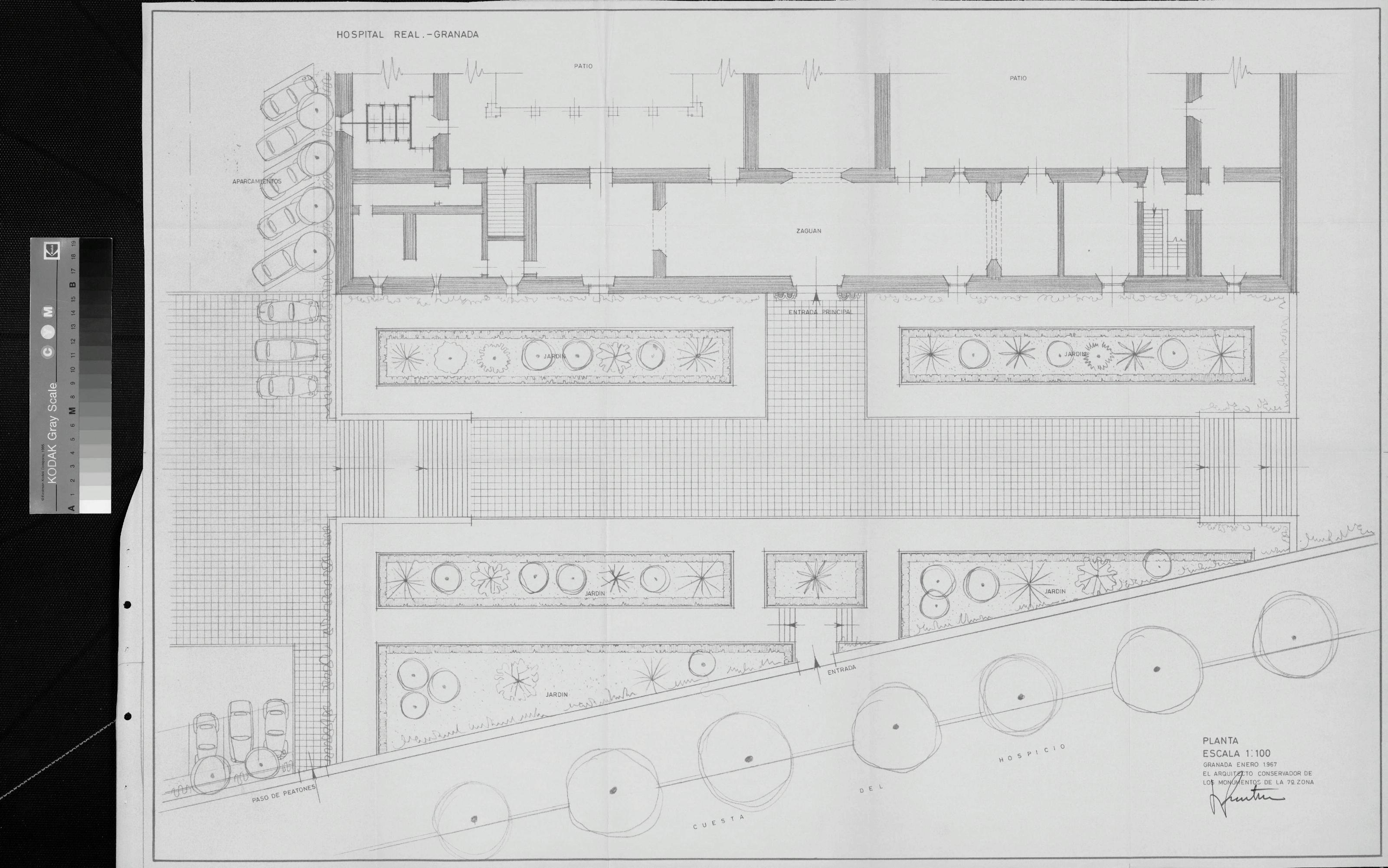
Hospital Real de Granada: Hospital Real Jardines y aparcamientos
|
|
|
|
Hospital Real de Granada: Hospital Real Jardines y aparcamientos
Fechas extremas
1967, enero, 1
Signatura
HIS ARCH 1 1003 / 24
Tipología documental
Plano
Signatura digital
Nº de Imagen: 05878 Nº de Disco TIFF: 0179 Nº de Disco JPEG: 0002 Nº de Disco DJVU: 0001
Hospital Real de Granada: Hospital Real Jardines y aparcamientos
|