|
Instituto del Patrimonio Cultural de España
»
Planoteca
»
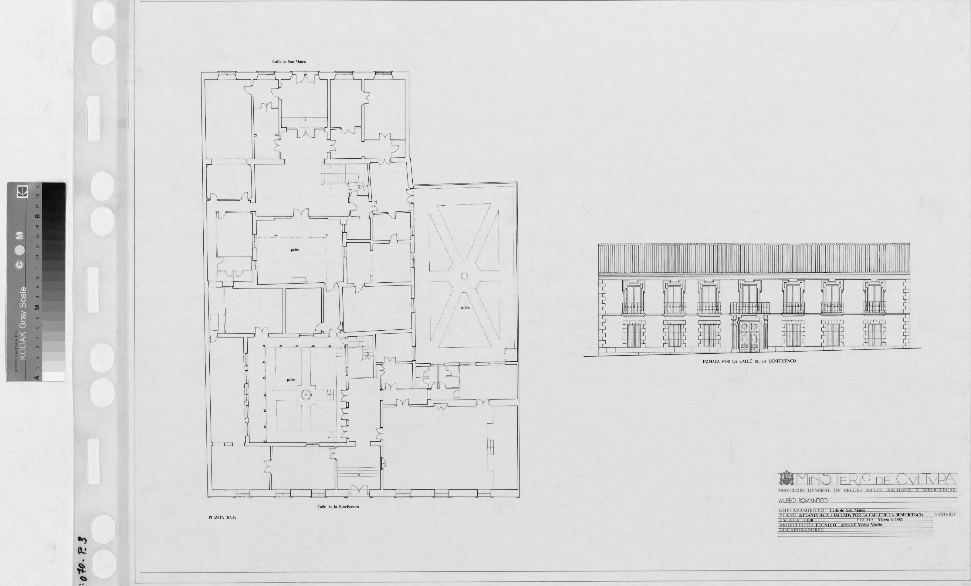
MUSEO ROMANTICO: PLANTA BAJA Y FACHADA POR LA CALLE DE LA BENEFICIENCIA
|
|
|
|
MUSEO ROMANTICO: PLANTA BAJA Y FACHADA POR LA CALLE DE LA BENEFICIENCIA
Fechas extremas
1983, enero, 1
Signatura
PLM ARCH 100 70 / 3
Tipología documental
Plano
Signatura digital
Nº de Imagen: 04996 Nº de Disco TIFF: 0124 Nº de Disco JPEG: 0001 Nº de Disco DJVU: 0001
MUSEO ROMANTICO: PLANTA BAJA Y FACHADA POR LA CALLE DE LA BENEFICIENCIA
|