|
Instituto del Patrimonio Cultural de España
»
Planoteca
»
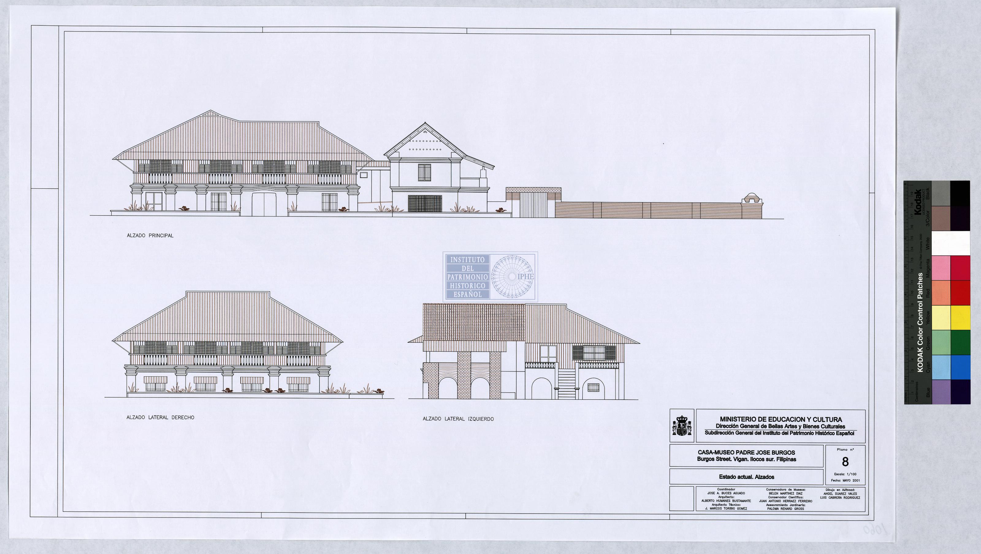
CASA-MUSEO PADRE JOSE BURGOS: ESTADO ACTUAL. ALZADOS
|
|
|
|
CASA-MUSEO PADRE JOSE BURGOS: ESTADO ACTUAL. ALZADOS
Fechas extremas
2001, enero, 1
Signatura
PLM CAJA 5 67 / 1060
Tipología documental
Plano
Signatura digital
Nº de Imagen: 18409 Nº de Disco TIFF: HD Nº de Disco JPEG: 0006 Nº de Disco DJVU: 0002
CASA-MUSEO PADRE JOSE BURGOS: ESTADO ACTUAL. ALZADOS
|