|
Instituto del Patrimonio Cultural de España
»
Planoteca
»
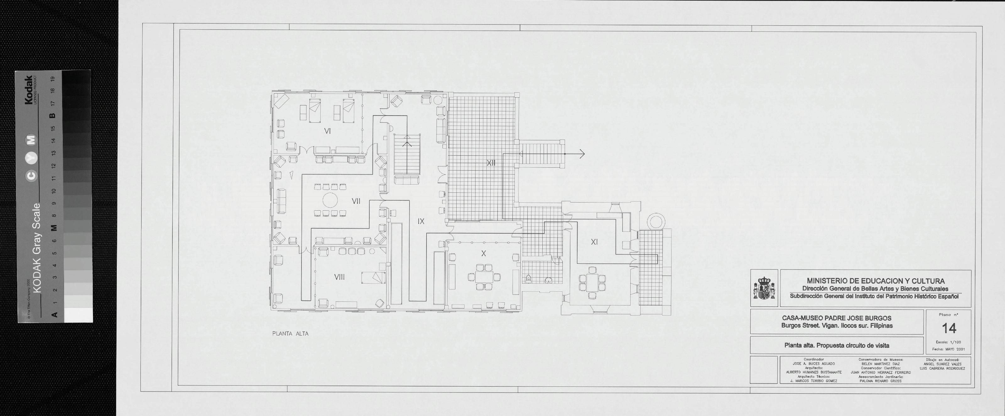
CASA-MUSEO PADRE JOSE BURGOS: PLANTA ALTA. PROPUESTA CIRCUITO DE VISITA
|
|
|
|
CASA-MUSEO PADRE JOSE BURGOS: PLANTA ALTA. PROPUESTA CIRCUITO DE VISITA
Fechas extremas
2001, enero, 1
Signatura
PLM CAJA 5 67 / 1068
Tipología documental
Plano
Signatura digital
Nº de Imagen: 09085 Nº de Disco TIFF: 0250 Nº de Disco JPEG: 0002 Nº de Disco DJVU: 0001
CASA-MUSEO PADRE JOSE BURGOS: PLANTA ALTA. PROPUESTA CIRCUITO DE VISITA
|