|
Instituto del Patrimonio Cultural de España
»
Planoteca
»
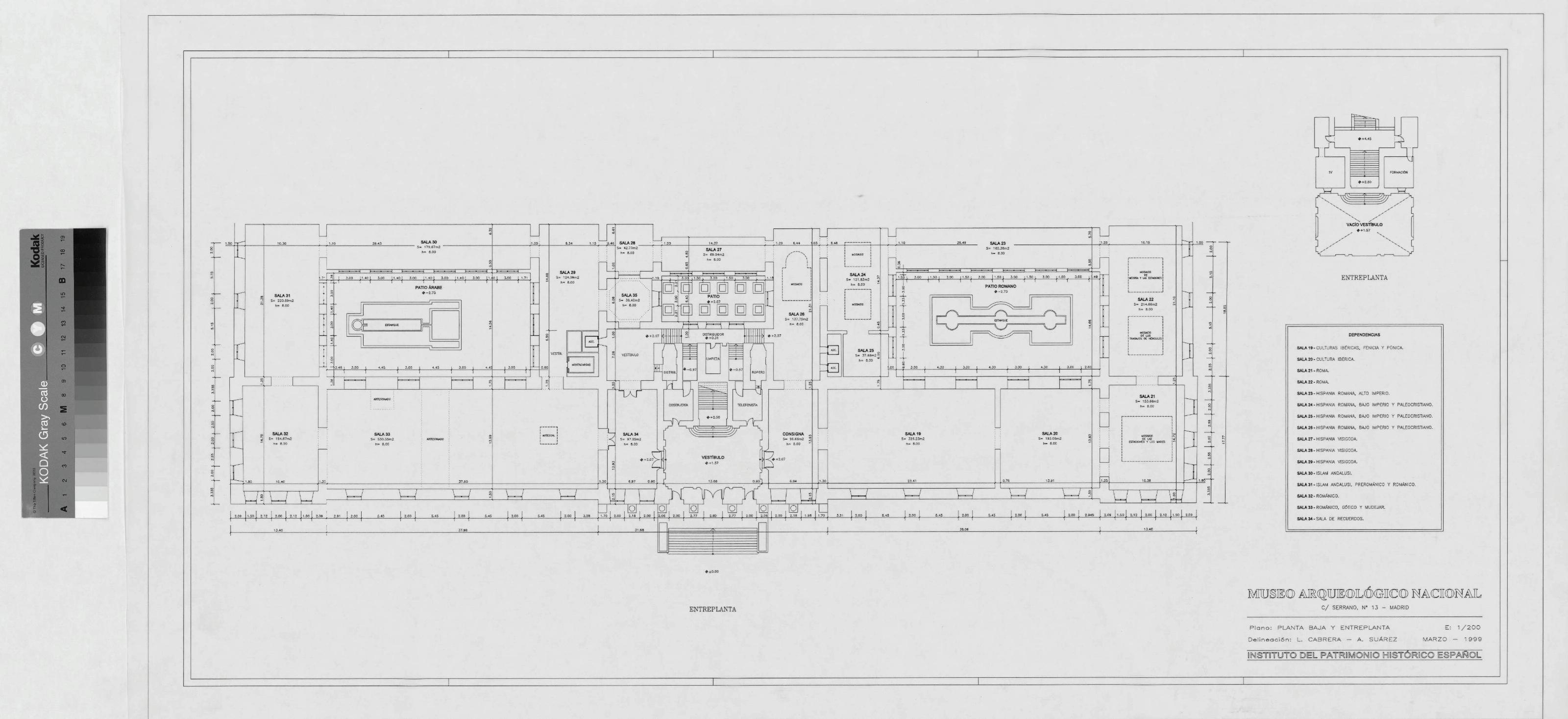
MUSEO ARQUEOLOGICO NACIONAL: PLANTA BAJA Y ENTREPLANTA
|
|
|
|
MUSEO ARQUEOLOGICO NACIONAL: PLANTA BAJA Y ENTREPLANTA
Fechas extremas
1999, enero, 1
Signatura
PLM CAJA 5 86 / 1117
Tipología documental
Plano
Signatura digital
Nº de Imagen: 09134 Nº de Disco TIFF: 0251 Nº de Disco JPEG: 0002 Nº de Disco DJVU: 0001
MUSEO ARQUEOLOGICO NACIONAL: PLANTA BAJA Y ENTREPLANTA
|