|
Instituto del Patrimonio Cultural de España
»
Planoteca
»
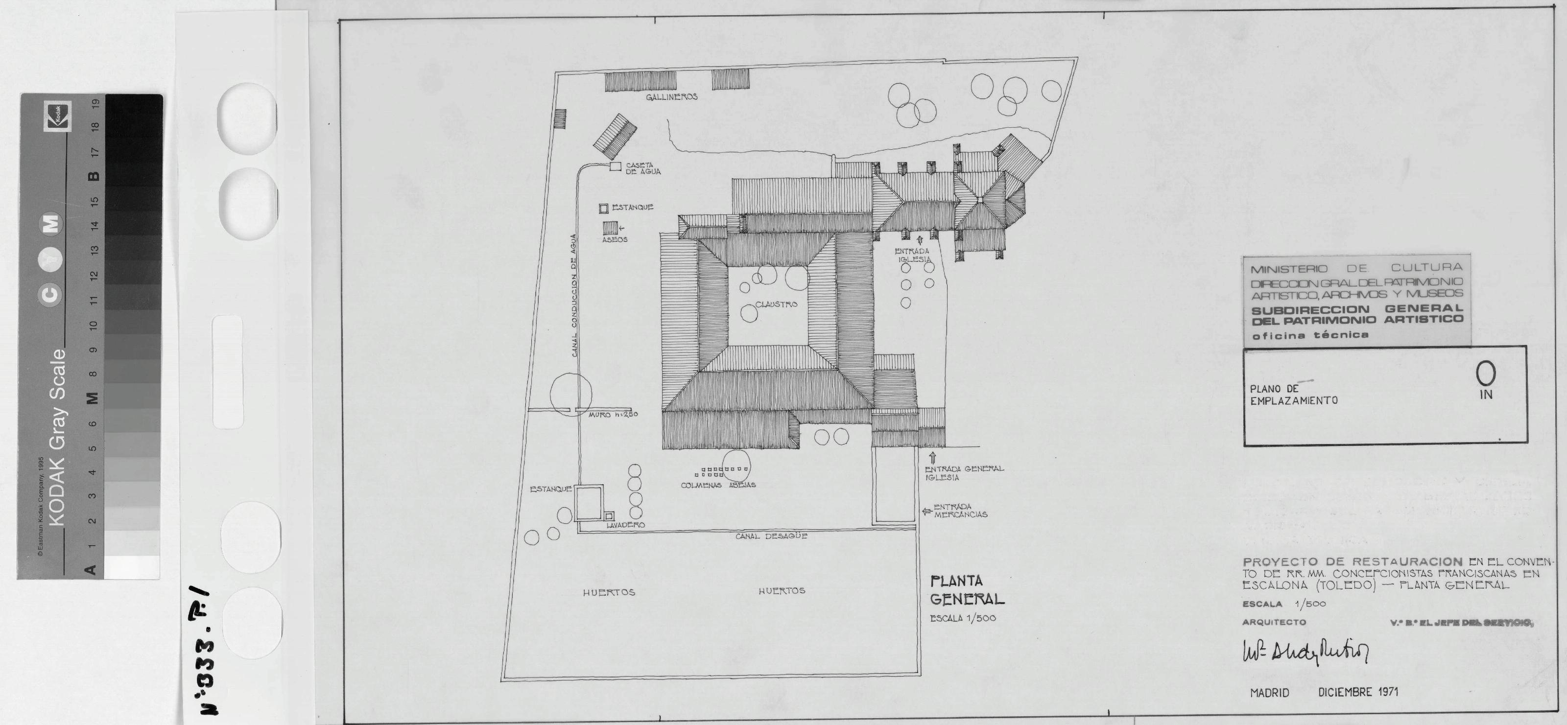
CONVENTO DE RR.MM CONCEPCIONISTAS: PLANO DE EMPLAZAMIENTO
|
|
|
|
CONVENTO DE RR.MM CONCEPCIONISTAS: PLANO DE EMPLAZAMIENTO
Fechas extremas
1971, enero, 1
Signatura
PLM ARCH 6 333 / 1
Tipología documental
Plano
Signatura digital
Nº de Imagen: 02787 Nº de Disco TIFF: 0080 Nº de Disco JPEG: 0001 Nº de Disco DJVU: 0001
CONVENTO DE RR.MM CONCEPCIONISTAS: PLANO DE EMPLAZAMIENTO
|