|
Instituto del Patrimonio Cultural de España
»
Planoteca
»
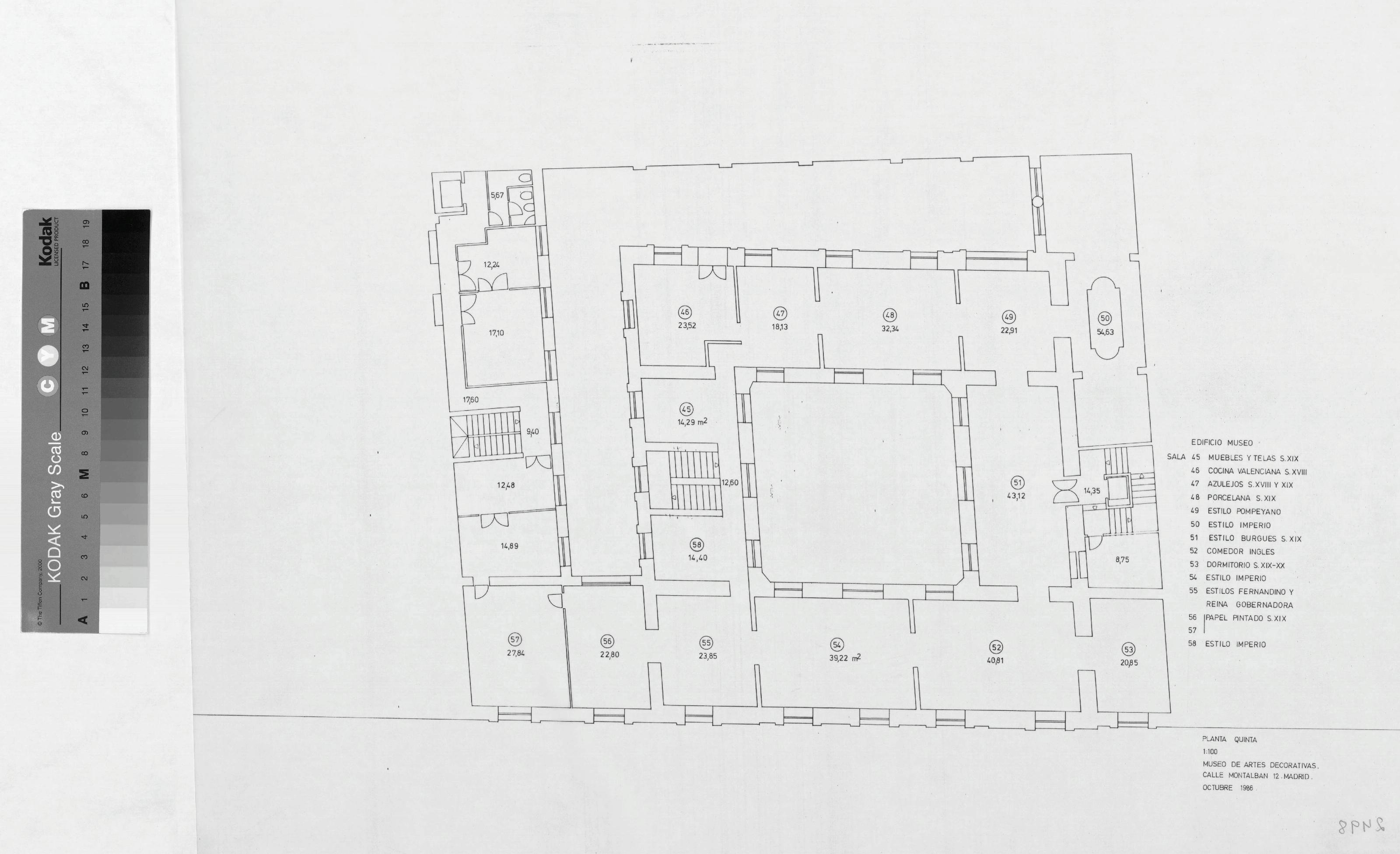
MUSEO ARTES DECORATIVAS: PLANTAS 5ª
|
|
|
|
MUSEO ARTES DECORATIVAS: PLANTAS 5ª
Fechas extremas
1986, enero, 1
Signatura
PLM CAJA 19 622 / 2498
Tipología documental
Plano
Signatura digital
Nº de Imagen: 10426 Nº de Disco TIFF: 0275 Nº de Disco JPEG: 0003 Nº de Disco DJVU: 0001
MUSEO ARTES DECORATIVAS: PLANTAS 5ª
|