|
Instituto del Patrimonio Cultural de España
»
Planoteca
»
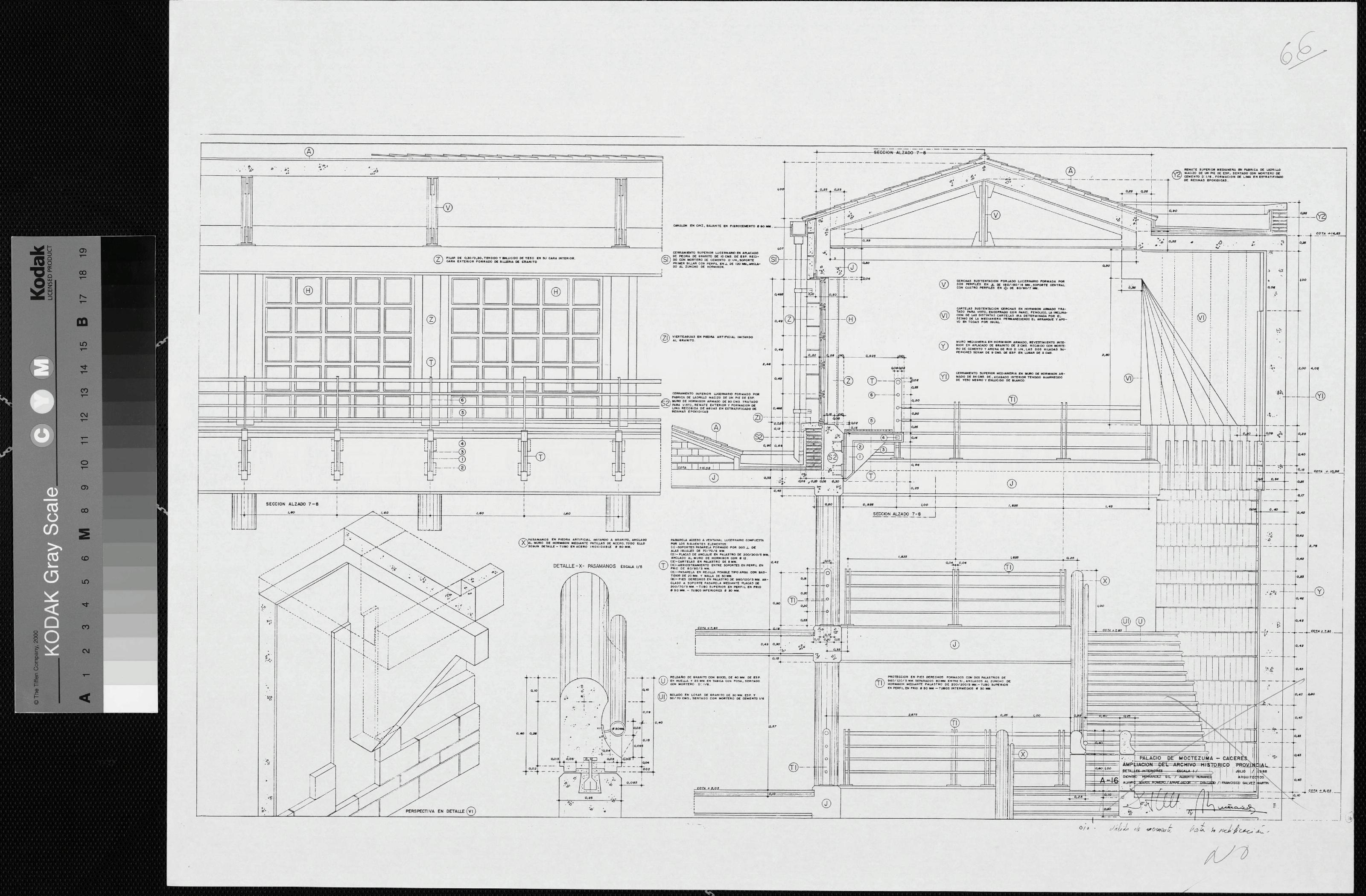
PALACIO DE MOCTEZUMA. ARCHIVO HISTORICO PROVINCIAL: DETALLES INTERIORES
|
|
|
|
PALACIO DE MOCTEZUMA. ARCHIVO HISTORICO PROVINCIAL: DETALLES INTERIORES
Fechas extremas
1988, enero, 1
Signatura
PLM CAJA 4 51 / 768
Tipología documental
Plano
Signatura digital
Nº de Imagen: 08809 Nº de Disco TIFF: 0247 Nº de Disco JPEG: 0002 Nº de Disco DJVU: 0001
PALACIO DE MOCTEZUMA. ARCHIVO HISTORICO PROVINCIAL: DETALLES INTERIORES
|