|
Instituto del Patrimonio Cultural de España
»
Planoteca
»
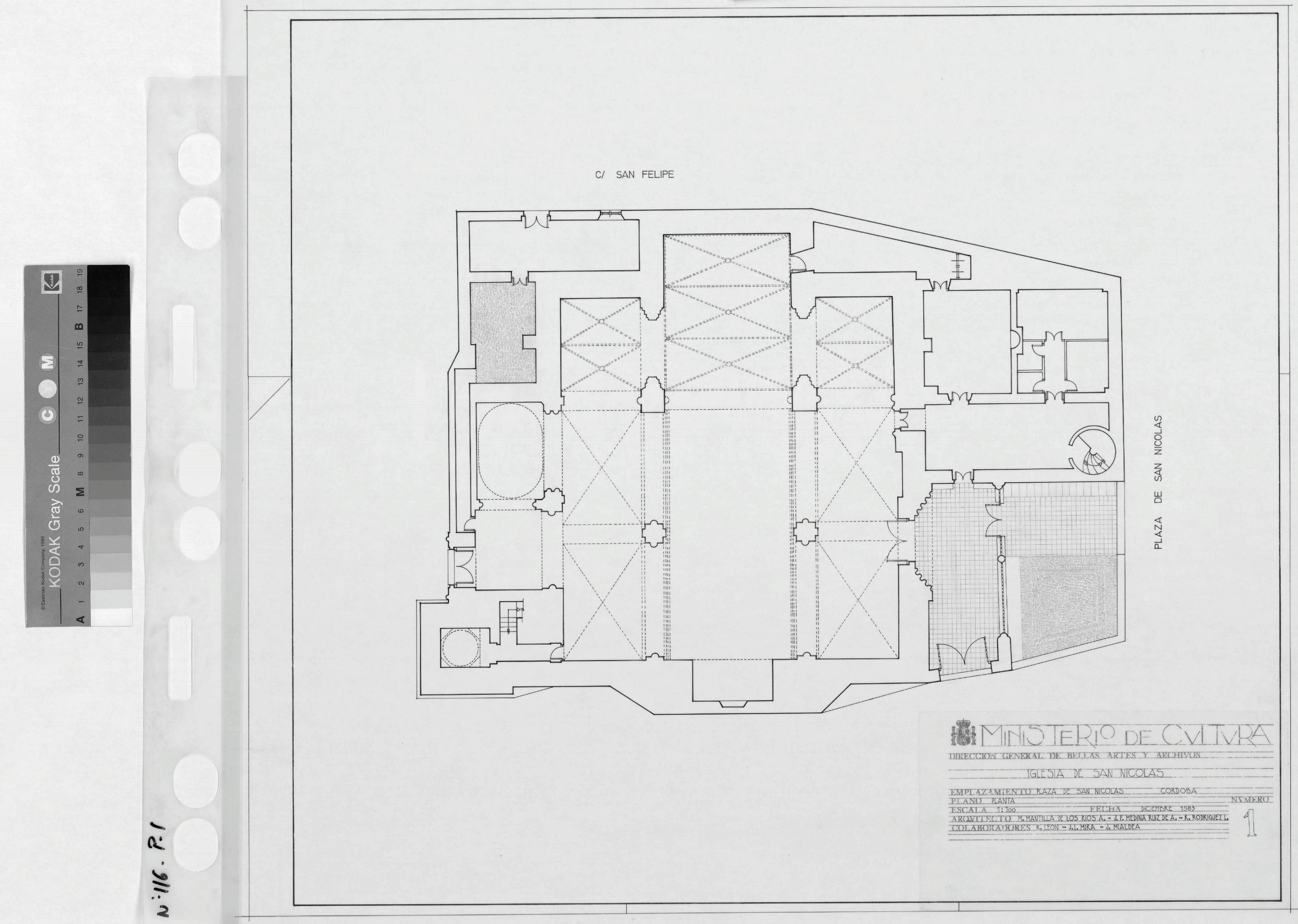
IGLESIA DE SAN NICOLAS: PLANTA GENERAL
|
|
|
|
IGLESIA DE SAN NICOLAS: PLANTA GENERAL
Fechas extremas
1983, enero, 1
Signatura
PLM ARCH 9 116 / 1
Tipología documental
Plano
Signatura digital
Nº de Imagen: 04246 Nº de Disco TIFF: 0109 Nº de Disco JPEG: 0001 Nº de Disco DJVU: 0001
IGLESIA DE SAN NICOLAS: PLANTA GENERAL
|