|
Instituto del Patrimonio Cultural de España
»
Planoteca
»
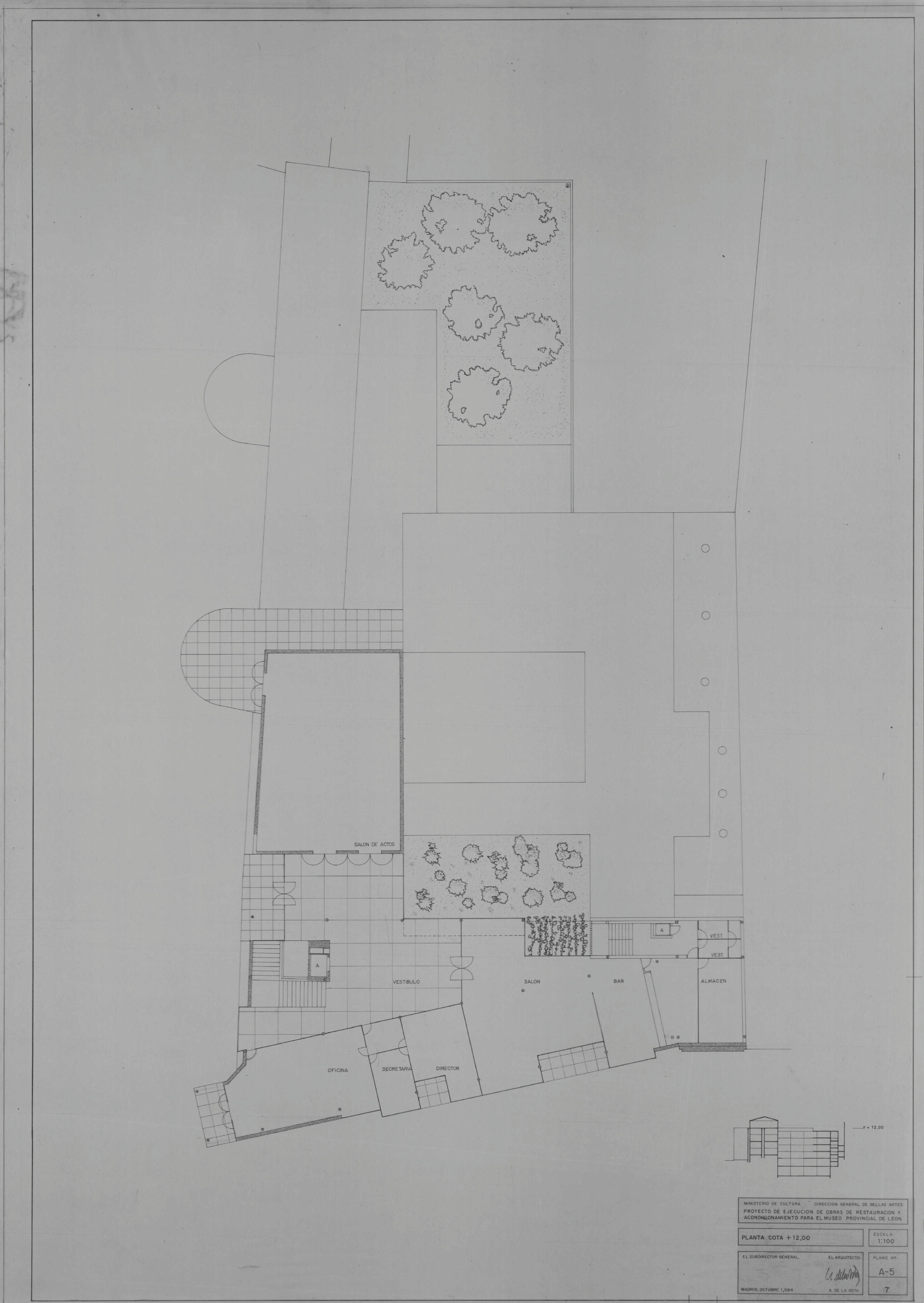
MUSEO PROVINCIAL DE LEON - PROYECTO DE EJECUCION DE OBRAS DE RESTAURACION Y ACONDICIONAMIENTO: PLANTA (cota+12.00) Con denominación de estancias, comunicaciones verticales de ascensores y escaleras, solado y jardinería y pequeño esquema sobre sello indicando sobre una sección el nivel al que corresponde la planta. Firmado
|
|
|
|
MUSEO PROVINCIAL DE LEON - PROYECTO DE EJECUCION DE OBRAS DE RESTAURACION Y ACONDICIONAMIENTO: PLANTA (cota+12.00)Con denominación de estancias, comunicaciones verticales de ascensores y escaleras, solado y jardinería y pequeño esquema sobre sello indicando sobre una sección el nivel al que corresponde la planta. Firmado
Fechas extremas
1984, enero, 1
Signatura
PLM ARCH 4 442 / 5
Tipología documental
Plano
Signatura digital
Nº de Imagen: 01545 Nº de Disco TIFF: 0048 Nº de Disco JPEG: 0001 Nº de Disco DJVU: 0001
MUSEO PROVINCIAL DE LEON - PROYECTO DE EJECUCION DE OBRAS DE RESTAURACION Y ACONDICIONAMIENTO: PLANTA (cota+12.00)Con denominación de estancias, comunicaciones verticales de ascensores y escaleras, solado y jardinería y pequeño esquema sobre sello indicando sobre una sección el nivel al que corresponde la planta. Firmado
|