|
Instituto del Patrimonio Cultural de España
»
Planoteca
»
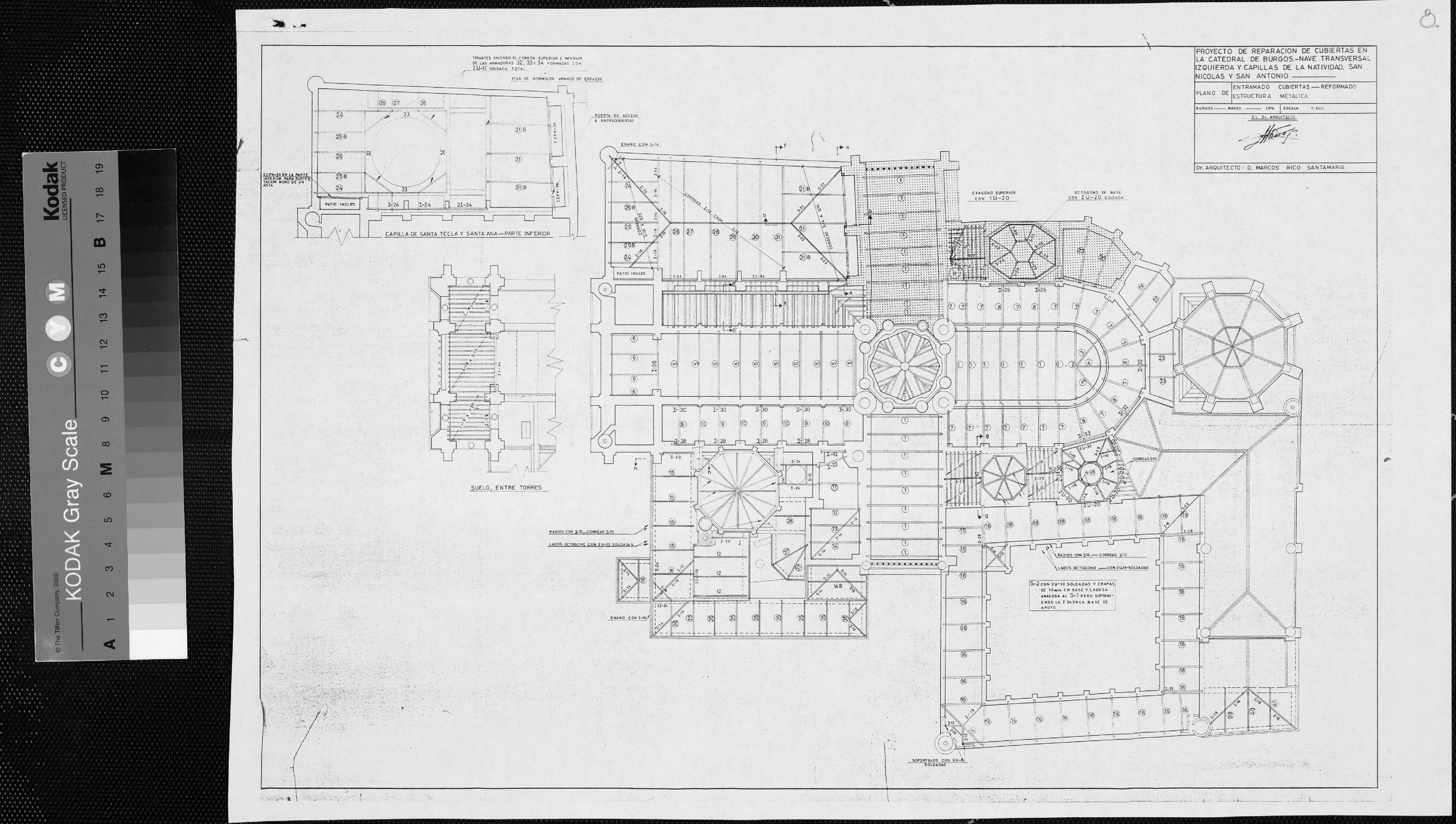
CATEDRAL DE BURGOS: PLANTA GENERAL DEL ENTRAMADO DE CUBIERTAS, MARCANDO LA ZONA DE LA INTERVENCION
|
|
|
|
CATEDRAL DE BURGOS: PLANTA GENERAL DEL ENTRAMADO DE CUBIERTAS, MARCANDO LA ZONA DE LA INTERVENCION
Fechas extremas
1976, enero, 1
Signatura
PLM CAJA 7 125 / 1432
Tipología documental
Plano
Signatura digital
Nº de Imagen: 09425 Nº de Disco TIFF: 0257 Nº de Disco JPEG: 0003 Nº de Disco DJVU: 0001
CATEDRAL DE BURGOS: PLANTA GENERAL DEL ENTRAMADO DE CUBIERTAS, MARCANDO LA ZONA DE LA INTERVENCION
|