|
Instituto del Patrimonio Cultural de España
»
Planoteca
»
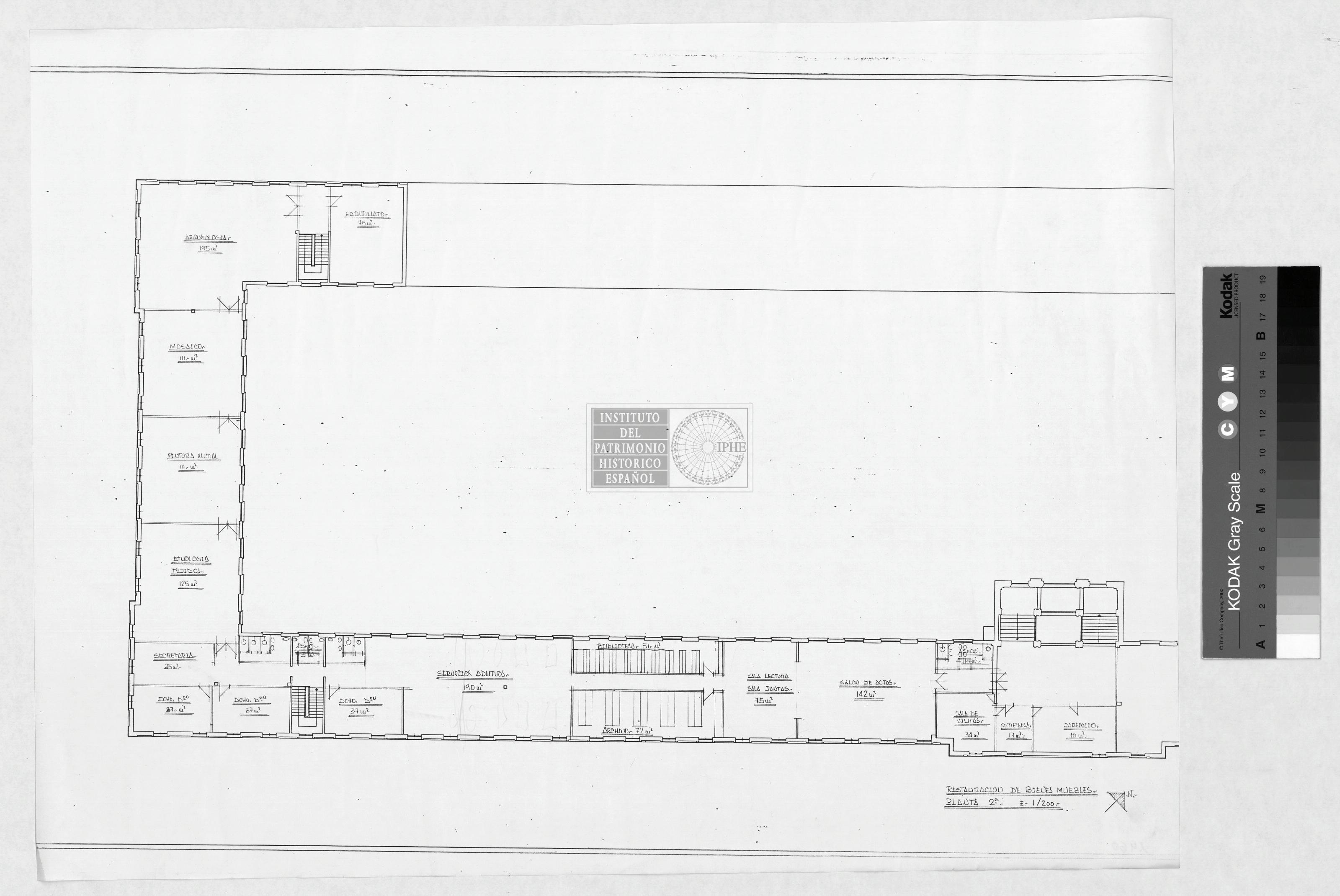
PROYECTO READAPTACION DEL EDIFICIO DE FUNDACION DE GREMIOS . C/ CARDENAL HERRERA ORIA: PLANTA 2ª
|
|
|
|
PROYECTO READAPTACION DEL EDIFICIO DE FUNDACION DE GREMIOS . C/ CARDENAL HERRERA ORIA: PLANTA 2ª
Fechas extremas
9999, septiembre, 9
Signatura
PLM CAJA 19 613 / 2460
Tipología documental
Plano
Signatura digital
Nº de Imagen: 19147 Nº de Disco TIFF: HD Nº de Disco JPEG: 0006 Nº de Disco DJVU: 0002
PROYECTO READAPTACION DEL EDIFICIO DE FUNDACION DE GREMIOS . C/ CARDENAL HERRERA ORIA: PLANTA 2ª
|